Quartier 74°
Aachen-Burtscheid, Duitsland
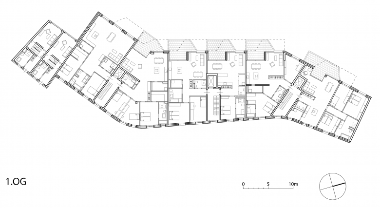
Das Bauvorhaben liegt zwischen Burtscheider Markt, Altdorfstraße und Benediktinerstraße. Der Entwurf sieht eine Vervollständigung der straßenbegleitenden Raumkanten bei gleichzeitiger Aufwertung des Blockinneren vor. In vier Steps und insgesamt drei Bauabschnitten sollen vielfältige Wohneinheiten unterschiedlicher Größe entstehen - sowohl als Neubaumaßnahme als auch durch die behutsame Sanierung der ehemaligen denkmalgeschützten Landesklinik und durch Nachverdichtung im Bereich der Benediktiner Straße. Gestaltprägendes Element des ersten Bauabschnitts sind großzügige Terrassen, die zusammen mit dem begrünten Blockinneren hochwertige Außenräume für die Bewohner und Nutzer bieten. Die mitten auf dem Grundstück liegende Landesbadquelle, die mit ihrem bis zu 74° heißem Quellwasser die heißeste Quelle Europas ist, hat dem Gesamtvorhaben seinen Namen gegeben. Ziel des übergeordneten Masterplans ist es, das Quartier durchwegbar zu machen, um die Besonderheit des Ortes der Öffentlichkeit zugänglich zu machen und damit die Identität des Burtscheider Kurviertels zu stärken.
- Architecten
- kadawittfeldarchitektur
- Jaar
- 2018
- Klant
- Karlstor-Bruchteilsgemeinschaft Quartier 74° GmbH
- Bauvolumen
- 1. BA: 31 Wohneinheiten, BGF 9.070 m²
- Architekt
- kadawittfeldarchitektur
- Realisierung
- 1.BA: 2016-2018: Direktbeauftragung 2014
- Projektleitung
- Linda Leers












