Forstamt Jena-Holzland
Stadtroda, Duitsland
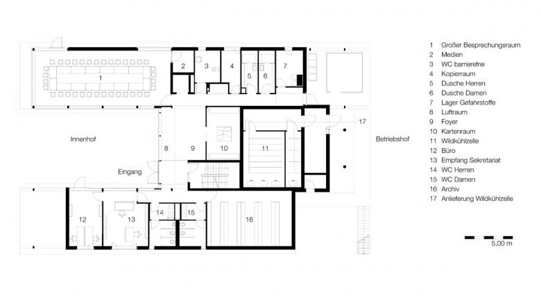
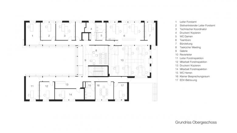
Der Neubau „Forstamt Jena-Holzland“ in Stadtroda (Ostthüringen) beherbergt eines von 24 Thüringer Forstämtern sowie die Forstinspektion Ost. Das naturnahe Anwesen ist geprägt von einem alten Arboretum und weitläufigen Streuobstwiesen mit Bienenstöcken. Das Grundstück bot somit ideale Voraussetzungen für das Forstamt, das auch in zahlreichen waldpädagogischen Angeboten Wissen über das Ökosystem Wald und die Bedeutung von nachhaltiger Forstwirtschaft vermittelt.
Besucher und Mitarbeiter gelangen von Süden auf einen mit Staudenpflanzungen strukturierten Parkplatz aus Rasensteinen auf der Westseite des Gebäudes gegenüber dem Eingangsbereich. Über den Innenhof zwischen den beiden Gebäudeflügeln betritt man das zweigeschossige Entrée. Der Betriebshof auf der Rückseite ist über eine separate Zufahrt von Osten zu erreichen.
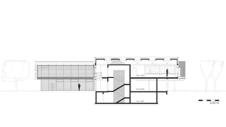
Das Gebäude ist als konstruktiver Holzbau über einem kleinen Untergeschoss aus Beton errichtet. Das Tragskelett und die hybriden Holz-Beton-Verbunddecken bestehen aus BauBuche. Dieser in Thüringen entwickelte Furnierwerkstoff aus heimischer Buche ermöglicht es aufgrund seiner Materialeigenschaften, sehr leistungsfähige Holzkonstruktionen zu realisieren. Die hinterlüftete Fassade ist als Holzrahmenbau mit Lärchenholzschalung oder Putzfassade ausgeführt. Die großzügigen Glasflächen des Innenhofs erleichtern die externe und interne Kommunikation und erlauben den Blick auf die Holztragkonstruktion sowie zahlreiche weitere Details aus heimischen Hölzern im Inneren. Als konstruktiver Holzbau mit einer Kombination aus bewährten und neuartigen Materialien zeigt der Entwurf, was Holz als nachwachsendes und wirtschaftliches Baumaterial leisten kann.
Durch seine klare funktionale Struktur mit dem in der Mitte liegenden Gruppenbüro der Revierförster befördert der Entwurf den Austausch unter den ständig hier anwesenden Mitarbeitern und den nur temporär im Büro arbeitenden Förstern. Holzwerkstoffe, weiße Putzflächen und die für das Projekt angefertigten Tischsysteme mit farbigen textilen Akustikelementen sorgen für eine heitere Arbeitsatmosphäre und unterstreichen die Integration von Konstruktion, Gebäudehülle, Innenausbau und Möblierung.
Exemplarisch dient das Forstamt Jena-Holzland auch als Konzept für ein Büro- /Verwaltungsgebäude für Kommunen oder Firmen, da durch die positive Ausstrahlung die Kommunikation und Transparenz schlanker Organisationen befördert wird.
- Architecten
- +Seelinger Architekten BDA
- Jaar
- 2018
- Klant
- ThüringenForst
- Team
- Projektleitung in cornelsen+seelinger GbR: Dipl.-Ing. Martin Seelinger, Projektarchitektin: Dipl.-Ing. Iris Elsenheimer
- Tragwerksplaner
- merz kley partner ZT GmbH, A-Dornbirn
- Energiekonzept, TGA-Planung
- Solares Bauen GmbH, Freiburg im Breisgau
- Bauausführung Holzbau
- Grossman Bau GmbH & Co. KG, Rosenheim
- Brandschutzkonzept
- Dehne, Kruse Brandschutzingenieure GmbH & Co. KG, Gifhorn
- Auszeichnungen
- Deutscher Holzbaupreis 2019, Kategorie „Neubau“ | Architekturpreis 2019 der Architektenkammer Thüringen (Anerkennung)
















