Wohnen im Pumpenwärterhaus
Sanierung und Umbau eines Industriedenkmals
Situation – Das im Jahre 1908 erbaute Pumpenwärterhäuschen an der Auffahrt zum Gut Hombusch in Mechernich war in die Jahre gekommen:
Über Jahrzehnte innen und außen durch diverse Umbauten und Ergänzungen überformt, dadurch zum Teil erheblich beschädigt und mit technischen und funktionalen Mängeln behaftet, mußte das Gebäude, um es überhaupt weiter vermieten zu können, grundlegend saniert werden.
Offensichtlich einmal mit hohem architektonischen Anspruch errichtet und sorgfältig in die Landschaft eingepasst, drohten diese ehemaligen gestalterischen und funktionalen Qualitäten unterzugehen:
Das Innere war durch diverse Einbauten und eine Unmenge von ungeschickten Reparaturmaßnahmen der Vormieter weitgehend zerstört. Keller und Erdgeschoss wiesen erhebliche Feuchtigkeitsschäden auf, die Wärmedämmung der Außenhülle erwies sich als unzureichend, die Haustechnikanlagen waren marode, eine Heizung nicht vorhanden. Die äußere Erscheinung wurde durch zahlreiche Anbauten und grobe Eingriffe in die Gebäudehülle gestört. Der angrenzende Wald verschattete das Gebäude stark.
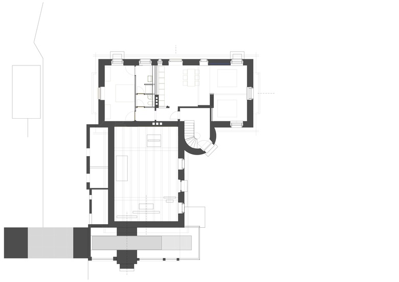
Programm – Nach Bestandsaufnahme, Studien zu Nutzungserweiterungen und Analyse möglicher Sanierungsmaßnahmen und Überprüfung deren Wirtschaftlichkeit wurde folgendes Programm festgelegt:
- Sanierung und Umbau zwei der drei vorhandenen Wohnungen;
- vorbereitende Massnahmen zur späteren Sanierung der dritten Wohnung und des Maschienenraumes;
- Abbruch sämtlicher Anbauten und Rückbau grober Fassadeneingriffe;
- gezielte und behutsame Dämmmassnahmen ohne Veränderung der Gebäudekontur und -materialität; - gezielte und behutsame Reparatur von Bauschäden an Dach, Fenstern und Mauerwerk;
- Sicherung der oberirdischen Gebäudesubstanz durch eine Horizontaldichtung;
- Nutzbarmachung der Kellerräume für die Haustechnik (Lüftung, Brandschutz);
- Neuinstallation von Elektro-, Sanitär- und Heizungsanlage;
- Auslichtung des angrenzenden Baumbestandes;
- Erhalt und Stärkung der ortstypischen Landschaftselemente (Wiesen, Obstbäume, Wasserfläche)
- Schaffung neuer oberirdischer Garagen und Abstellräume;
- Neuordnung der Erschliessungsflächen und der Aussenbeleuchtung.
Gestaltung – Übergeordnetes gestalterisches Ziel war, die sorgfältig ausgewählten und werkgerecht gefügten Materialien des Bestandgebäudes zu bewahren und wenn möglich zu reparieren.
Im Inneren waren die Originalmaterialien nicht mehr erkennbar. Sie mußten durch Abtragen der angesammelten Schichten über- haupt erst einmal erkundet werden.
Die Gebäudestruktur war durch vielfache Um- und Einbauten verschwunden, Original und nachträgliche Einbauten vielfach inei- nander verschränkt, so dass wir den Mut fassten, im Innern radikal vorzugehen und die bestehenden Innenwände bis auf die sta- tisch unbedingt notwendigen Teile auszuräumen, um Luft zu schaffen für großzügigere, lichtdurchflutete Räume und Raumfolgen.
Eine kompakte Sanitärzone teilt beide Wohnungen nunmehr in einen offenen Bereich zum Wohnen und Essen und einen geschützten Schlafbereich. Im Schlafraum wurde eine zugemauerte Fenstertüröffnung wieder geöffnet.
Im Zuge der Abbrucharbeiten kam im Erdgeschoss ein zwar stark zerstörter, aber reparabler Terrazzoboden zum Vorschein, dessen Fehlstellen ergänzt werden konnten. Die durchfeuchteten Fußbodendielen im Erdgeschoss wurden ersetzt durch Dielen aus vom Bauherrn selbst geschlagenen und gesägten Douglasienholz.
Im Obergeschoss wurde die zentrale Gaube freigeräumt und die originalen Fenster und Fenstertüren zum Balkon repariert. Die freigelegten Fichtendielen wurden geschliffen und Fehlstellen ergänzt.
Die hellen, leicht ins rötliche tendierenden Hölzer prägen nunmehr das Innere des gesamten Hauses. Die Originaltüren wurden überwiegend wiederverwendet, aufgearbeitet und weiss lackiert. Bruchsteinmauerwerk aus Buntsandstein, Schiefer und frisch sanierte Holzfenster und -bekleidungen dominieren dagegen wei- terhin das äußere Erscheinungsbild des von seinen Anbauten befreiten Gebäudes
Das neue Garagengebäude ist als einfacher, flacher, und scharf konturierter Holzkubus ausgeführt und so positioniert, dass die Zufahrt räumlich gefasst wird, das Bestandsgebäude jeodch nach wie vor frei in der Wiesenlandschaft stehend zur Geltung kommt.
Bei Nacht wird diese Wirkung durch sanftes Streiflicht auf die Rundung des Treppenturms, die rauhe Gebäudeoberfläche und die charakteristischen Dachkanten akzentuiert.
- Jaar
- 2017












