53.32 ° N / 9.59 ° O
HTP plant gemeinsam mit DC Residential GmbH & Co. KG in einem Joint Venture die Entwicklung, Planung, den Bau und die Veräußerung der Wohnungen im Marco Polo Tower in der Hamburger Hafencity. Die entstandenen vier Wohnungen werden anschließend als Design Ready Produkt an den Käufer übergeben. Der Erstausbau der Wohnungen obliegt den Wohnungskäufern als Bauherren in eigener Verantwortung. Hierfür kann er von verschiedenen Architekturbüros erstellte Planungen des Innenausbaus als Premiumvarianten auswählen. Aufgabe war es eine Gestaltung zu entwickeln, die sich an die amorphe Formensprache des Turms anlehnt.
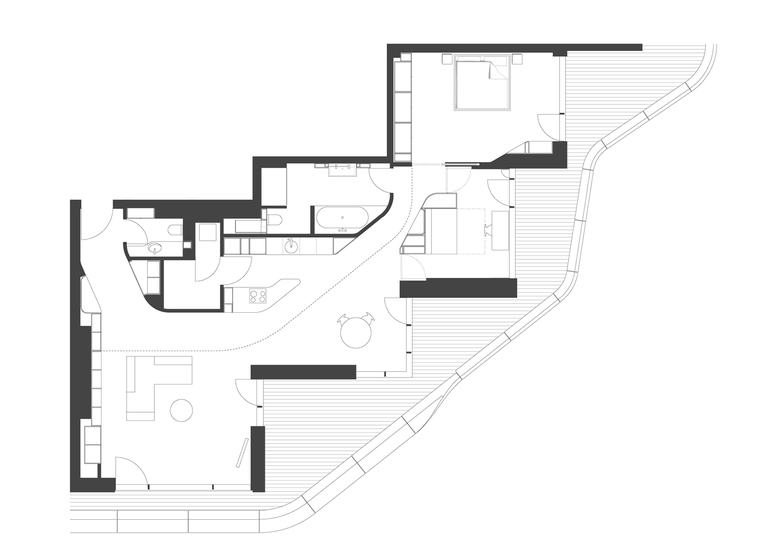
Die Wohnung 58 im 15. Obergeschoss des Wohnturmes wurde gemäß den Traumvorstellungen der Käufer hochwertig ausgebaut. Entstanden ist eine, der amorphen Formensprache des Turms entsprechende, fließende Raumabfolge, in der sich verschiedene Funktionsbereiche vom Entree, über den Wohn- und Essbereich bis hin zum Schlafzimmer wie selbstverständlich überlagern. Die geschwungenen Wände, in die zahlreiche Elemente integriert sind, dienen hierbei zugleich als verbindende und als zonierende Elemente. Schränke, Regale, Garderobe und die Küche sind unter anderen Funktionen als flächenbündige Einbauten konzipiert, wodurch die Flächen optimiert genutzt werden, ohne den Raumfluss zu brechen. Raumhohe, in Wandnischen oder Wandenden stehende Türen können bei Bedarf einzelne Bereiche der Wohnung von dem Raumgefüge trennen, wodurch trotz der größtmöglichen Offenheit auch Rückzugsmöglichkeiten für Eigentümer und Gäste entstehen. Nebenräume, wie die Bäder, ein Hauswirtschaftsraum und Stauräume sind am zentralen Kern des Hauses angeordnet. Die Hauptfunktionen gliedern sich um diesen starken Rücken herum an der Fassade entlang, was zu einer einzigartig uneingeschränkten Wahrnehmbarkeit des Hamburger Hafen-Panoramas führt. Die gedeckte, warme Farbe dieses eingestellten Volumens führen in Kombination mit dem dunklen Eichenparkett und einer gezielten Lichtplanung zu einer besonders behaglichen Atmosphäre. Lichtvouten, die die steigende Raumhöhe nutzen und die Neigung des Daches bewusst inszenieren, betonen hierbei die geschwungene Formensprache und erzeugen starke, dynamische Raumsituationen.
Aufgabe
InteriorDesign für exklusiven Wohnungsausbau
Bauherr
privat, Hamburg
Planung
LPH 1-8 (2010-2011)
Fläche
164 qm WF (ins. 4 WE mit 400 qm WF)
Auszeichnung
AIT - International Luxury Living Application Award 2013" -Auszeichnung in der Kategorie "Best Interior Concept" für das Interior Design der WE 58 im 15. OG des Marco Polo Towers
- Jaar
- 2012









