Sanierung Wohnung Neumatt
Die Hauswartswohnung der Schulanlage Neumatt in Belp wurde 1972 von den Architekten Walter Schindler und Hans Habegger erbaut. Nach über 40 Jahren machte ein Mieterwechseleine umfassende Sanierung möglich.
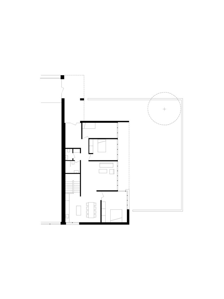
Die Wohnung ist direkt an die Kurzseite der Turnhalle angebaut und wird mit einem grossen Rippendach aus Ortbeton überspannt. Der Abschluss des Gebäudes bildet ein hofartiger Garten. Die neuen Eingriffe brechen den langen Korridor des Bestandes auf und verbinden die Zimmer zu einem fliessenden Innenraum. Gezielte Ausblicke in den Garten schaffen Weite, Querblicke durch die Wohnung bringen viel Licht in die Tiefe des Gebäudes. Eine neue raumhohe Tür bietet nun die Möglichkeit, auf verschiedene Nutzungsvarianten der Räume reagieren zu können und das Eckzimmer direkt mit dem Wohnbereich zu verbinden. Die ehemals kleinteilige Küche wurde zum Wohnbereich hin geöffnet. Mit dem frei im Raum
platzierten Küchenkorpus wurde eine Nische mit unterteiltem Koch- und Essbereich ermöglicht.
Durch Freilegen der Betonrippen konnte zusätzliche Raumhöhe geschaffen und die Tragstruktur des grossen Daches spürbar gemacht werden. Die Decken und Wände sind weiss gestrichen und mit einem Parkett aus Eiche kombiniert.
Entstanden ist eine wohnliche Atmosphäre mit viel Tageslicht und abwechslungsreichen Ausblicken in den privaten Gartenraum.
2014
Bauherrschaft : Einwohnergemeinde Belp
Mitarbeit : Mirko Nydegger, Marc Haller, Christian Gut
- Jaar
- 2014




