Ersatzneubau Lacheren Schlieren
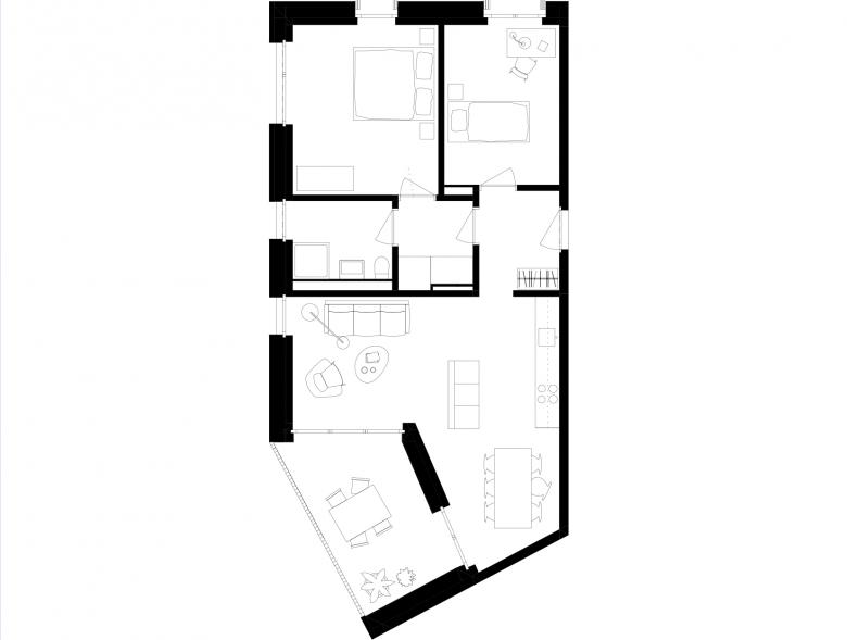
Das Grundstück befindet sich im Gebiet Lacheren am nördlichen Rand der Stadt Schlieren. Das Quartier ist geprägt durch zwei- bis dreigeschossige Wohnbauten. Die beiden Ersatzneubauten für 35 Wohnungen integrieren sich in die vorgefunden Körnung des Quartiers und gliedern sich harmonisch in die bestehende nördliche Bebauung ein. Aufgrund der städtebaulichen Setzung hat fast jede Wohnung zwei Seiten mit maximal unterschiedlichem Charakter: einerseits der stark strukturierte, härtere Rücken zur Limmatstrasse, andererseits die ruhige Seite zum Hofraum. Das Raumgefüge löst sich mittels Wandscheiben geometrisch in freie Formen auf, während die Individualzimmer rechtwinklig und statisch bleiben. Der architektonische Ausdruck des Gebäudes manifestiert sich in der Dualität der Fassaden: Die Strassenfassade ist im Kompaktsystem mit durchlaufenden Bändern ausgeführt. Durch die leicht goldig schimmernden Glasstreifen entsteht ein subtiles Spiel mit klassischen Themen der horizontalen Fassadengliederung. Analog zu den horizontalen Elementen auf der Nordseite sind die vertikalen Gliederungselemente mit goldenem Flies hinterlegten Scheiben materialisiert. Diese dienen einerseits der solaren Energiegewinnung aber vor allem sind sie gestalterische Elemente, welche je Lichteinfall bei jeder Tages und Jahreszeit den Hof in andere Stimmungen versetzen.
Kategorie: Wohnen
Auftragsart: Studienauftrag auf Einladung, 1. Preis
Auftraggeber: Gemeinnützige Baugenossenschaft Limmattal
Landschaftsarchitektur: Cadrage Landschaftsarchitekten
Visualisierungen: Filippo Bolognese
BGF: 5'850 m2
Wohnungen: 36
Bearbeitung: seit 2017
- Jaar
- 2023






