Kunst im Herzen

Schaffhausen, Zwitserland
Photo © Andrin Winteler
Photo © Andrin Winteler
Photo © Andrin Winteler
Photo © Andrin Winteler
Photo © Andrin Winteler
Photo © Andrin Winteler
Jaar
2013
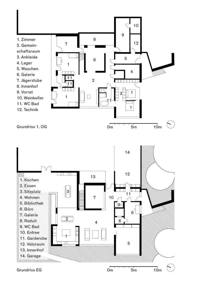
Neubau
Villa in historischer Parkanlage
Auftrag
Direktauftrag
Anzahl Zimmer
9.5
Wohnfläche
432 m2
Grundstücksfläche
3717 m2
Kubatur SIA 116
2836 m3

Andere projecten van Dost Stadtentwicklung Architektur Innenarchitektur 

HerzKlinik Hirslanden
Zürich, Zwitserland
Leisibühlpark
Männedorf , Zwitserland
Neubau Mehrfamilienhaus Jules & Jim
Zürich, Zwitserland
Umbau Mr. Jones
Schaffhausen, Zwitserland
Herzpraxis Höngg
Zürich, Zwitserland