Forensische Therapie Rheinau

© Dominique Marc Wehrli
© Dominique Marc Wehrli
© Dominique Marc Wehrli
© Dominique Marc Wehrli
© Dominique Marc Wehrli
© Dominique Marc Wehrli
© Dominique Marc Wehrli
© Dominique Marc Wehrli
© Dominique Marc Wehrli
© dja
© dja
© dja
© dja
Jaar
2007
Project Status
Built
Auftraggeber
Kanton Zürich
Landschaftsarchitektur
Studio Vulkan
Kunst am Bau
Monika Müller
Baumanagement
Bosshard und Partner Architekturbüro
Wettbewerb
2002, 1. Preis
Aufgabe
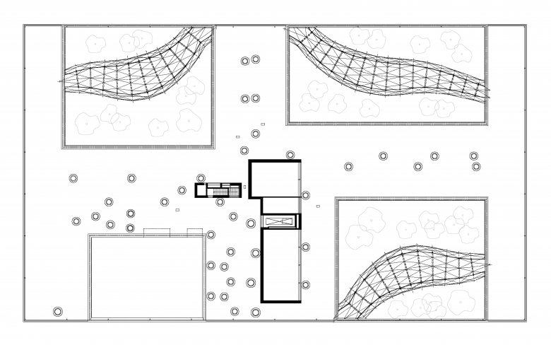
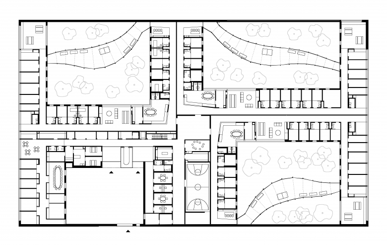
Neubau von drei Stationen für Forensische Therapie für die Psychiatrische Universitätsklinik Zürich in Neu-Rheinau. Neu-Rheinau ist im Bundesinventar der schützenswerten Ortsbilder von nationaler Bedeutung ISOS aufgeführt.
Programm
3 Stationen für je 9 Patienten mit Aufenthalts-, Arbeits- und Therapieräumen. Personal-, Eintritt- / Austritt- und Besucherbereiche. Gymnastikraum und Andachtsraum. Hoher Sicherheitsstandard. Minergiestandard.

Andere projecten van Derendinger Jaillard Architekten 

Gemeindehaus Münsingen
Münsingen, Zwitserland
Kantonsschule Ausserschwyz Nuolen
Nuolen, Zwitserland
Bahnhof Zürich Altstetten
Zugang Bahnhof Herrliberg / Feldmeilen
Collège Principal de Pully