Dorf- und Bildungszentrum Wollerau

Wollerau, Zwitserland
Visualization © atelier brunecky
Visualization © atelier brunecky
Visualization © atelier brunecky
Visualization © atelier brunecky
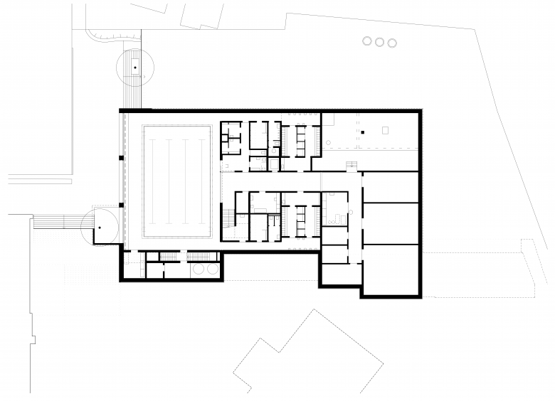
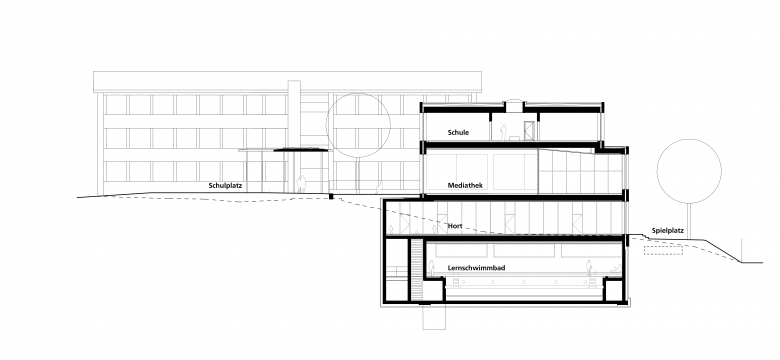
Drawing © dja
Drawing © dja
Drawing © dja
Drawing © dja
Drawing © dja
Drawing © dja
Photo © Zaborowsky
Photo © Zaborowsky
Jaar
2026
Project Status
Under Construction
Auftraggeber
Gemeinde Wollerau, Schwyz
Landschaftsarchitektur
Antòn Landschaft
Baumanagement
BGS & Partner Architekten
Wettbewerb
2015, 1. Preis
Aufgabe
Neuformulierung des Dorfzentrums und Neubau als Erweiterung der bestehenden Anlage mit zwei Primarschulhäusern.
Programm
Dorf- und Pausenplatz. Aula, Saal, Bibliothek/Mediathek, 5 Klassenzimmer, Gruppenräume, Schulverwaltung, Hort, Krippe, Schulschwimmanlage. Minergiestandard.

Andere projecten van Derendinger Jaillard Architekten 

Gemeindehaus Münsingen
Münsingen, Zwitserland
Kantonsschule Ausserschwyz Nuolen
Nuolen, Zwitserland
Bahnhof Zürich Altstetten
Zugang Bahnhof Herrliberg / Feldmeilen
Collège Principal de Pully