Qin House
Qin House, with the exquisite cottage
Qin House is a hostel, which is renovated by two sets of courtyard with local characteristics. It is the first node with accommodation function in the Wangjiatuan space promotion plan.
The former courtyard of Qin House is located in the middle of Wangjiatuan village, close to the core node of the water system in the village. In its original state, it is two adjacent independent courtyards.The west courtyard has a long history and the main wall material is blue brick.It is two into the courtyard pattern, retaining the door head, screen wall and other typical traditional residential elements.The east courtyard was built in the 1970s as a single courtyard with a flat roof wing on the east side. The original appearance of the building was cement plastered wall, which was not in harmony with the appearance of ancient villages.
The design team hopes to use the theme of "six arts · eight arts" in the overall village planning in the design.Therefore, "music" becomes the theme of this building, and the Qin is the embodiment of "music".
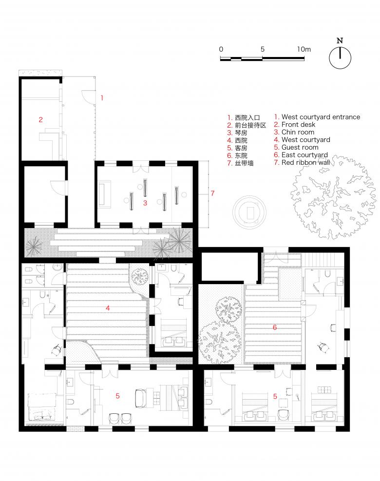
The space has been rezoned: the reception area, the piano room, and the five guest rooms with their own bathrooms have been transformed into an elegant cottage.On the premise of retaining the existing courtyard pattern, the design team rearranged the spatial streamline and added the entrance space of light steel structure in the northwest of the original house.Unlike the heavy brick facade, the new addition USES u-shaped glass as the facade material, which not only ensures the lighting of the internal space, but also has the appropriate privacy.Under the effect of internal light, the internal activities of the space are projected on the external facade, forming a blurred image, which has a dramatic contrast effect with the primitive original building.The east wing of the east courtyard is close to the core landscape of the village. The design team added a viewing platform on the roof of the east wing, which not only meets the user's needs for viewing and outdoor activities, but also increases the elevation change and interest of the space.
The east gable of the west courtyard is one of the main facades of the building, which can be clearly seen from the village view.However, the original building housed the electricity meter boxes of eight nearby households, and the power lines were disorderly, which caused problems for the operation of the new home stay facility.At first, the design team hoped to remove the electric box, but due to the extensive influence of the project, it was impossible to implement. Finally, the design team decided to add a steel wire mesh cover on the outside of the electric box.However, after the implementation, it is found that the shielding effect is still not ideal, the density of the wire mesh is so low that the shielding effect is minimal.How to do? The design team must quickly make adjustments in limited circumstances.A "public art" project was proposed: designers bought large quantities of red ribbons and asked villagers to tie them to steel mesh covers.The red ribbon not only blocks out the negative landscape elements behind, but also has the meaning of blessing. As a result, this "better late than never" measure has become the most popular "scenic spot" in the village.
In terms of creating an indoor atmosphere, the designer also adjusted the interior space.After roofing repairs and adding a waterproof insulation treatment, the design team removed the original interior space's decorative ceiling, revealing the original building's distinctive triangular wooden trusses.As the height of the space increases, the comfort level and appearance are also improved.The designer deliberately left traces of demolition: rough yellow mud walls, gray cement floors, and recycled old wood and other elements, forming a slightly rough space base and casual farmhouse atmosphere.In contrast to these marks are fine woodwork, warm fireplaces and comfortable upholstery.The design team hopes to do this to satisfy the user's different visual and tactile experiences.However, it must be delicate, comfortable and soft within the touchable range to bring users a good experience.This is what Qin House hopes to convey to users.
Since ancient times, a complete life is subject to harmony in itself, family, society, nature, philosophy and many other aspects.In this regard, the design team tried to maintain the original appearance of the original building in the renovation process, and respected the typical cultural characteristics of Jiaodong dwellings through the design method of "micro-renovation".The design team skillfully utilized the relationship between the natural environment and the original building to achieve the symbiosis between the building and the environment.As the holiday season approaches, travel has become a leisure activity for many families.The designer hopes that this transformation can bring an unforgettable journey of Chinese culture to the public, where people can let their minds rest between mountains and rivers and forget themselves between literature and music.
Project name: Qin House
Location: Wangjaituan Town, Weihai , Shandong Province
Design Company: 3andwich Design / He Wei Studio
Website: www.3andwichdesign.com
E-mail:[email protected]
Principal Architect: He Wei
Design Team: Chenlong, Zhang Jiaojie,Sang Wanchen,Liqiang,Wu Lijun
On-site:Representative: Liu Weidong
Soft outfit counselor: Baibing
Building area:120 sqm
Cooperation company:Beijing VAGE Institute of Architectural Design & Planning Co., Ltd
Period of Design: Dec. 2017 - Apri 2018
Period of Construction: 2018
Photographer: Jin Weiqi
- Jaar
- 2018
- Team
- He Wei, Chenlong, Zhang Jiaojie, Sang Wanchen, Liqiang, Wu Lijun
- Cooperation company
- Beijing VAGE Institute of Architectural Design & Planning Co., Ltd
- On-site:Representative
- Liu Weidong
- Soft outfit counselor
- Baibing














