Mica Bar
Remoulded from an ordinary private multiple dwelling house in the Wangjiatuan Village in the city of Weihai, Shangdong Province,the Mica Bar is located near the entrance to the village and surrounded mostly by old local residences with heavy and plain roughly-stoned walls, which are connected tightly to each other with relatively high construction density. Differentiated to these old residences, the original single-storey dwelling building is of modest architectural massing and was not in the common local traditional style, of which a sloping roof had been added to the original flat one due to style and features uniformity.And, with its conspicuous white-painted walls, the original house seemed to be“incompatible” with the heavy atmosphere of its surroundings.Separated to the other buildings with quite a distance,it also possesses excellent range of visibility.With more iconic uniqueness and visual identity, the dwelling is built along the ravine stream flowing by, with an overhanging terrace over it, relaxing and graceful.
The style of the remoulded building is not supposed to be retro. On the contrary,“It should be new!”is what the designer claimed. The new building should endow the old village with new look and blood,just as the people it is to serve in the future —— young, romantic, and one moment even a bit restless and sexy. The Mica Bar is expected to reinvent the beautiful scenery line at the village entrance and, meanwhile, despite its distinctiveness, to be part of the village and to dialogue and coexist with the old residences, with preservation of important information of the original building, control of the architectural massing and “serenity” of the appearance.
First, the subtraction: clearing and dismantling the extension parts, including the temporary kitchen and the sloping roof. With these “whitewashing parts” completely removed, the actual “architectural essence” is revealed. And then, the addition: augmenting new architectural parts to the east- and west-wing of the house respectively, to remedy the lost area of the demolished kitchen, while creating a buffer zone to the entrance. By means of "supplementing", the "modernity" of the architectural blocks of the original building formed accidentally through the self-built parts are strengthened.
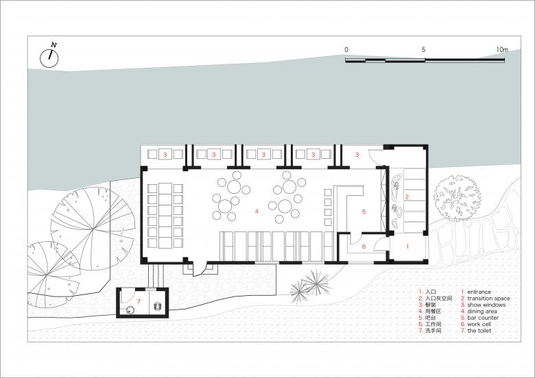
On the side facing the watercourse of the ravine stream, the overhanging terrace has become the focus of the architecture. Four independent “boxes” are inserted into the space between the terrace and eaves. The original bracket beams are carefully preserved and exposed, to form an occlusion with the inserted boxes. Intentionally, the remade facade of the building echoes the classic modernist architecture. Through the four new “showcases” in form of stage scenery, a kind of dramatic “see-and-be-seen relation”between the new and the old buildings across the watercourse is set up, while,through “framing”of the landscape of the old village by the new building and“peeping” into the interior of the new building by the old village, a kind of atypical relation of communication between the new and the old is created. Hollowed-out tiled walls are built to the east and west facades of the house, which create light and shade effects at a specific time and, as a local traditional constructive technique and a linking medium, close the gap between the new and the old.
The “white” design elements extend into the interior architecture, creating some kind of plain and a little rough spatial atmosphere by using terrazzo floor, hollowed-out tiled wall, white steel mesh and log as main spatial materials, which form the spatial base, as well, like the blanks in traditional Chinese paintings, providing endless possibilities for the future. The floors of the “showcases” are painted with different colors, which show splendid hues under the sunshine and reflect into the white spaces, subtly mirroring the vibrant aura in the bar.
Project name: Mica-Bar
Location: Wangjaituan Town, Weihai , Shandong Province
Design Company: 3andwich Design / He Wei Studio
Website: www.3andwichdesign.com
E-mail:[email protected]
Principal Architect: He Wei
Design Team: Chenlong, Zhang Jiaojie,Sang Wanchen,Liqiang,Wu Lijun
On-site:Representative: Liu Weidong
Soft outfit counselor: Baibing
Building area:120 sqm
Cooperation company:Beijing VAGE Institute of Architectural Design & Planning Co., Ltd
Period of Design: Dec. 2017 - Apri 2018
Period of Construction: 2018
Photographer: Jin Weiqi
- Jaar
- 2018
- Team
- He Wei, Chenlong, Zhang Jiaojie, Sang Wanchen, Liqiang, Wu Lijun
- On-site:Representative
- Liu Weidong
- Soft outfit counselor
- Baibing
- Cooperation
- Beijing VAGE Institute of Architectural Design & Planning Co., Ltd




























