UAD Campus in ZITOWN
Project name: UAD Campus in ZITOWN
Client: The Architectural Design & Research Institute of Zhejiang University Co., Ltd. (UAD) (http://www.zuadr.com/)
Design firm: The Architectural Design & Research Institute of Zhejiang University Co., Ltd. (UAD) (http://www.zuadr.com/)
Location: Xiyuan 8th Road, Hangzhou, Zhejiang
Category: office building
Structure: steel structure
Floors: 3 (above ground)
Area: 8,888 square meters
Design leaders: Dong Danshen, Yin Nong
Engineering principals: Xiao Zhibin, Mo Zhoujin
Architectural design: Wang Yuping, Lei Bin, Mao Hanxuan
Structural design: Xiao Zhibin, Jin Zhenfen, Li Shaohua
Water supply & drainage design: Wang Jinghua, Shao Yuran
Electrical design: Wu Xuhui, Xu Songjie
HVAC design: Pan Dahong, Yi Kai
Low-voltage electrical design: Chen Jia, Ma Jian
Landscape design: Sun Dongming, lou Xuantan
Interior design: Chu Ran, Mei Wenbin
Curtain wall design: Xiang Chun
EPC team: Zhou Jiawei, Xu Quanbiao, Chen Haijun, Fang chaojun
Construction firm: Hangzhou Zijin Zhunqian Technology Development Co., Ltd.
General contractor: Zhejiang Construction Engineering Group Co., Ltd.
Subcontractor: GBS
Start time: August 1, 2016
Completion time: October 1, 2020
Photography: Zhao Qiang, Zhu Xinliang, UAD 9+studio
Video: https://youtu.be/NlZ38aRfG0I
Main materials (suppliers): UHPC cladding panels, perforated aluminum panels, glass curtain wall modules (SYP)
Architectural design is no longer about purely rational thinking or perceptual output,
and any technical decision or creation of perceptual experience is based on both sense and sensibility.
As China continuously promoting the industrialization of architecture, an unconventional rapid construction mode based on prefabricated system has gradually become a mainstream in the market. Is industrialized construction a synonym of "roughness" and "low quality"? And how should it express the poetry of architecture?
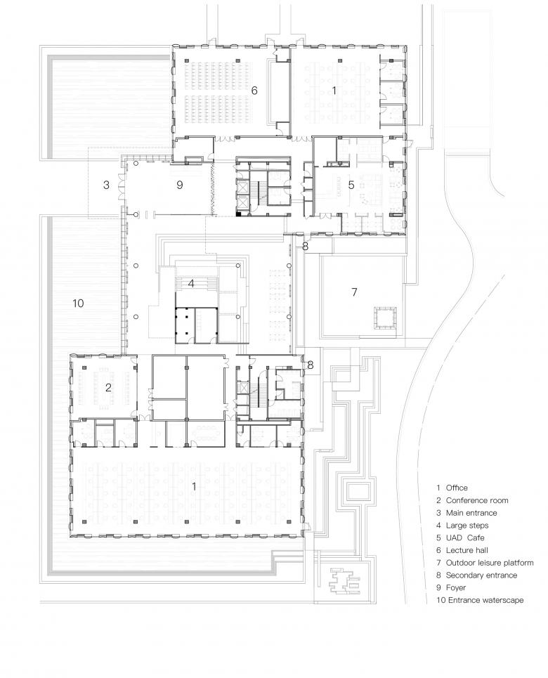
The project is an office building (Building B1) of the Architectural Design & Research Institute of Zhejiang University Co., Ltd. (UAD). It's located in ZITOWN, a base of R&D company headquarters jointly developed by the government of Xihu District in Hangzhou and Zhejiang University.
As one of the demonstrative prefabricated architecture projects selected by the Ministry of Housing and Urban-Rural Development of the People's Republic of China in 2019, the prefabricated rate and assembly rate of this building are respectively up to 85% and 96.8%. In addition, it's rated as a national Class-3A prefabricated building and a three-star green building. At the beginning of the design, we put forward the idea of making use of technology to serve rather than dominate the design. We adopted a holistic approach that involved systematic integration and multi-disciplinary collaboration, to create a venue filled with human care. The design emphasizes the poetry of industrialized construction, aiming to break the stereotype of general prefabricated buildings as rough, crude and cool.
The poetry of architecture is embodied in its subtle integration with life and the site, and is in essence the care for people. Prefabricated architecture is a product of the times, and is closely related to time, location and people. It transforms with time, while the core essence remains unchanged. In the process of pursuing technical progress, technology-oriented architecture tends to be purely rational and pursue precision. This indeed can help improve efficiency and economical aspects, but neglects the connection with the local context and people. The balance of architecture would be broken whether the design is biased towards technology or humanity. Social development greatly relies on the progress of technology, while poetry is indispensable to people's life. Therefore, architects need to balance technology and poetry in architectural design, and translate "poetry" into a language that is visible and understandable to the public.
I. Spatial order creates architectural poetry
The building B1 is formed by three interpenetrating cubes, among which the north and south volumes are large-width offices, while the central volume is a full-height atrium. The facades of both office volumes adopt similar modular UPHC cladding panels. Those panels are in two different colors and are either concave or convex on the two sides, hence forming 4 different modular units. The various combinations of those modular panels produce slightly curved shadows under the sunlight, and also generate a rational yet rhythmic facade image. Through the reflection of the entrance waterscape, the whole building is not bound to a fixed industrial park setting.
A path leads people to pass through the waterscape and then enter the building. The steel structures make the prefabricated architectural space more flexible, and the overall space is connected by a triple-height lobby. People can communicate on the big steps of the main hall, take a rest in the UAD Cafe, stroll through the side hall to appreciate regularly updated architectural exhibitions, or stand in front of the prefabricated greenery wall and look up to the sky through the photovoltaic glass skylight. Those open public spaces form a fluid circulate route, which helps eliminate the boundaries of different areas.
The entire building is like a three-dimensional garden that offers multiple choices of vertical traffic to access the workspace on the south and north sides, which create joyful walking experiences. The interior space is mainly finished with white coatings to achieve a bright environment, and it's conceived in a minimalist style with little decoration to seek visual coherence. The prefabricated structural columns, beams and floor minimize the volume of cast-in-place concrete. Castellated beams are employed as main beams, and major pipelines pass through them in an orderly manner, hence preserving the net height of the interior space to the maximum extent and adding a technological aesthetic to the exposed ceiling. This is a new construction mode that combines technology with art and encourages a new work approach.
II. Perceptual experience evokes architectural poetry
Time is a prerequisite of spatial diversity, and people’s perceptual experience in architectural space is not fragmented but a convergence of energy. Therefore, based on an overall spatial narrative that takes time as the thread, each space is conceived in a more specific manner, which affects people’s direct impression of the building. Elements, materials and even forms in the space directly determine what kind of atmosphere the building is about to generate.
The central cubic volume of building B1 functions as a full-height entrance lobby. It is not only the intersection of pedestrian circulations, but also an iconic visual highlight of the whole building. Serving as a resting area for the staff, a reception area and a place for hosting relevant exhibitions and forums from time to time, this multifunctional space is the most important part of the whole design.
The introduction of daylight has often been considered as the soul of architectural space. In this project, we created a poetic scene of “Play of light and shadows in a bamboo forest” after navigating technological difficulties, in a bid to inject poetry into the prefabricated architecture. To realize that, we first pixilated a photo of a real bamboo forest on the computer to gain vector data, and then resorted to parametric tools to convert the textures of the bamboo forest to the building's surface. Moreover, construction robots were leveraged to ensure the varied angles of the aluminum panels' perforations, so as to control the effect of the filtered daylight and create a poetic view of "A towering bamboo forest filled with mottled light and shadows". At dusk, it provides people with a poetic experience of "watching the sunset in the shadows of bamboo", adding varying visual effects and a tranquil ambience to the space.
III. Landscape design enhances architectural poetry
Another outstanding feature of the project is the fusion of architecture and landscape, and how they co-exist in the same built environment. The building and the landscape are connected in composition. Waterscape is set at the main entrance on the west side, to show a sense of rituality. In addition, a rest platform formed by volcanic stones and prefabricated concrete boards sits on the east side. Other landscape elements such as bamboo grove and flower pathway greatly enrich the spatial layering of the roads and secondary entrance. Complemented by the indoor cafe and lobby lounge, a dialogue between indoor and outdoor resting spaces is created.
The rooftop farm is another distinctive landscape design of the project, allowing the staff to enjoy laid-back life after work. The prefabricated rooftop farm is equipped with automatic irrigation system, and adopts lightweight organic soilless culture technique to grow plants in boxes made of environmentally friendly plastic. These modules can be spliced together into different shapes to cater to different formal requirements of the landscape. The rooftop farm can be divided into several parts, and any employees who are of interest can grow their favorite fruits and vegetables in their spare time.
IV. Epilogue
For this project, the balance among technology, art and nature is the key of the design. It gives an interpretation of poetic construction: architectural design is no longer about purely rational thinking or perceptual output; and any technical decision or creation of perceptual experience is based on both sense and sensibility. Rational construction is not constrained by technology but instead, it emphasizes the poetry of industrialization. It breaks the preconception that the public had about prefabricated architecture as rough, crude and cool.
- 年
- 2020
- Project Status
- 竣工済





















