Maestrani, Erweiterung Bürotrakt und Besucherbereich

Flawil, スイス
2013
クライエント
Maestrani Flawil
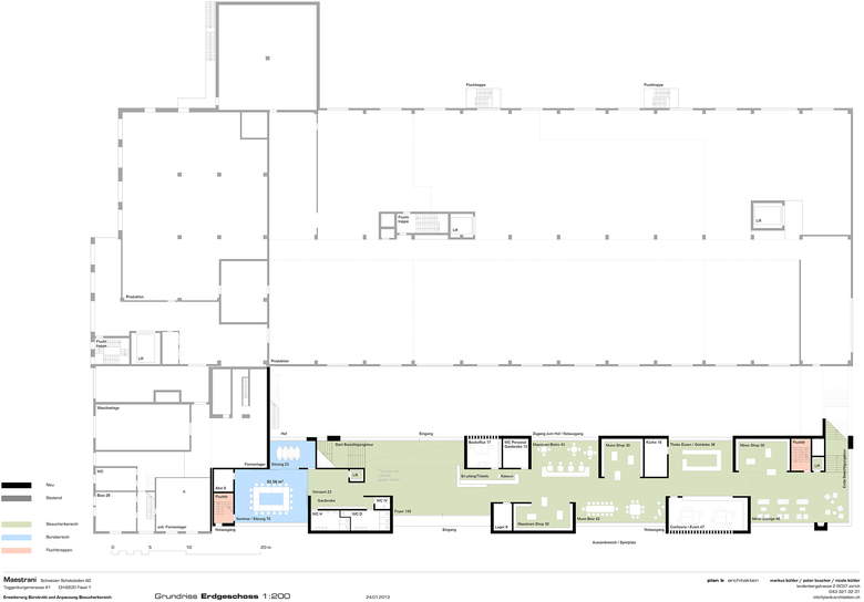
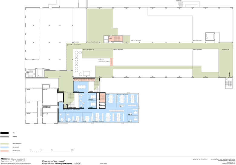
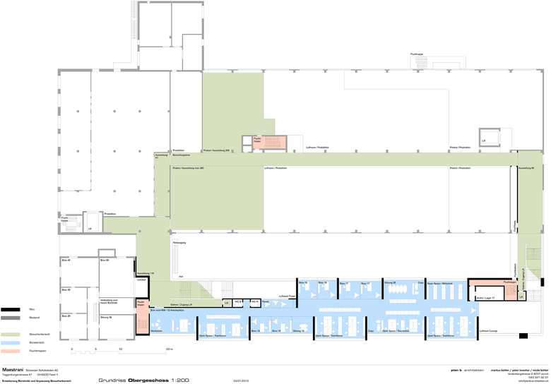
Aufgabe
Variantenstudien zum Ausbau des Besucherbereiches „Schoggiland“ und des Bürobereiches der Firma Maestrani in Flawil.
Projekt
2011-2013

plan b architekten gmbh によるその他のプロジェクト 

Neugestaltung Gebäudezugang und Büros
Schweiz, スイス
Evangelische Kirche Goldach, gedeckte Halle
Goldach, スイス
Ueberbauung Areal Wiesental
Herisau, スイス
Oberstufenzentrum Wildhaus
Alt St. Johann, スイス
Bürgerhaus Engelgasse
Teufen, スイス