Schul Campus Güssing
Generalplanung
Planungsbeginn: 2021
Baubeginn: 2022
Fertigstellung: 2024
Grundstücksfläche: 4.958 m²
Nutzfläche: 2.847 m²
BGF: 4.537 m²
BRI: 21.589 m³
Schul-Campus Güssing – Erläuterungstext
Licht – Luft – Sonne … und … Burg Güssing sind quasi die Ausgangsparameter für die Entwicklung des Schulcampus VS+ASO+ZMS im Zentrum der ausgedehnten Schulbau- und Sportanlagen entlang der Schulstraße.
Städtebaulich und architektonisch verlangt das „sportlich“ zugeschnittene Grundstück nach einer rationalen Organisation des Gebäudes, um das geforderte Raumprogramm, als auch die erwarteten Qualitäten umsetzen zu können.
Zunächst gilt es, genug Freiraum zu belassen, um die Bewegung für die Schüler sicherzustellen. Das Projekt wurde – dem schlanken Zuschnitt des Grundstücks geschuldet – als sich längs erstreckender, gestufter Baukörper in dreigeschossiger Bauweise angelegt.
Mehrere Vorteile werden daraus generiert:
• Ein guter Abstand zur NMS wird damit erzielt
• Über die gesamte Länge des Areals werden nach Süden ausgerichtete besonnte Freiräume geschaffen – seien es die „Vorgärten“ der einzelnen ASO-Klassen oder auch der Schulhof.
• Die Stufung der Funktionsebenen erzeugt großzügige Terrassen vor den Hauptunterrichtsräumen als möglichen Auslauf in den Pausen, aber auch als mögliche Freiklassen. Dies trifft auf alle drei Ebenen zu.
• Mit den großzügigen Öffnungen entlang der gesamten Südfassade erhält das Gebäude eine klare Orientierung - mit der Burg als Bezugspunkt - zum Zentrum der Stadt.
• Die Hauptunterrichtsräume sind nach Süden zur ruhigen Erschließungsstraße der Tennisplätze orientiert und nicht zur doch eher verkehrsmäßig „lauten“ Schulstraße hin.
• Alle Hauptunterrichtsträume erhalten dieselben Lichtkonditionen, eine besonnte Ostseite versus eine dunkle Westseite für den Vormittagsbetrieb wird vermieden.
Die Schmalseite des Objektes zur Schulstraße hin mit Ihrem Vorplatz definiert eine eindeutige Zugangssituation: hier sind witterungsgeschützte Zonen für das Warten und das Abstellen von Fahrrädern vorgesehen. Dies ist auch als Schwellenraum zu den Parkplätzen hin zu betrachten.
Die architektonische Ausgestaltung dieses Gebäudekopfes erzeugt eine klare Adressbildung für das Objekt und wirkt mit dem ausladenden Vordach einladend als Ganzes.
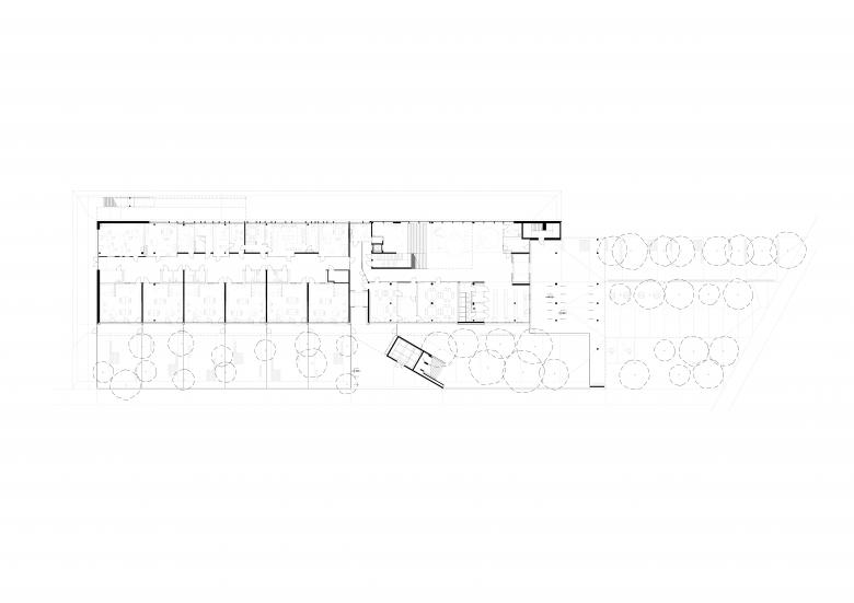
Trotz der Längsorganisation des Objektes ist eine gute Zonierung der Bereiche geschaffen: es sind quasi die jeweils für sich stehenden Einheiten klar nachvollziehbar und funktionieren gewissermaßen autonom, bilden dennoch ein kompaktes Gefüge.
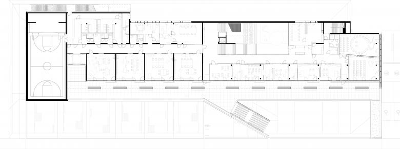
Die ASO wird in der westlichen Hälfte des Objektes erdgeschossig angelegt, der Eingangs- und Allgemeinbereich der VS und ZMS, sowie der Tagesbetreuungsbereich in der östlichen, zur Schulstraße hin orientierten Hälfte. Auf dem ersten OG befinden sich in der Westhälfte die Sonderunterrichtsräume mit südlicher Ausrichtung, sowie die Verwaltungs- und Lehrpersonalräume mit nördlicher Ausrichtung und der Turnsaal am Ende des Objektes. In der östlichen Gebäudehälfte sind die Räume für die ZMS angelegt, auf kurzem Wege direkt über der Haupteingangszone zu erreichen. Das zweite OG wird ausschließlich durch zwei gleichwertige Klassencluster mit den Lern- und Freiraumzonen bespielt. Auch hier sind - zum Teil mit einer Pergola überdeckte - großzügige Terrassenflächen vorgesehen.
Der Zugang zur ASO mit eigenem Windfang erfolgt entlang der Erschließungsstraße und ist damit – den Vorgaben des pädagogischen Konzeptes folgend - vom Haupteingang der VS/ZMS abgerückt, um die Ablenkung der Kinder nicht zu stark zu bewirken. Dennoch ist ein unmittelbarer Kurzschluss gleich bei Betreten des Gebäudes zur zentralen Aula möglich.
Die Aula ist der offene Lebens- und Aktionsraum für die unterrichtsbegleitenden Programme: seien es die Tagesbetreuung, aber auch Veranstaltungen. Die Freizeiträume sind unmittelbar – wiewohl Abtrennung möglich – in den Aulabereich integriert und bilden quasi zusammen mit den Sitzstufen eine großzügige Bespielungszone für die verschiedensten Aktivitäten. Hier ist auch die Bibliothek als wichtiger Teil des pädagogischen Gesamtkonzeptes integriert und animiert damit zum spielerischen Umgang mit dem Lesen. Die Sitzstufen können ebenso als Auditorium für die in unmittelbarere Nähe liegende ZMS oder umgekehrt als Bühne für performative Ambitionen verwendet werden.
Aus den Sitzstufen heraus entwickelt sich ein großzügiges, offenes Erschließungsstiegenhaus über alle Ebenen. Ein Lift für die barrierefreie Erschließung ist selbstredend darin integriert. Für die Sicherstellung der Fluchtwege sind zusätzliche Stiegenanlagen – ein geschlossenes Stiegenhaus, sowie verschieden Freitreppen angelegt.
Das Objekt ist nicht nur in der Organisation, sondern auch in der Konstruktions- bzw. Bauweise rational angelegt. Die Haupttragteile folgen dem Raster der Klassen über alle Ebenen, sodass eine effiziente Auslegung der Stützen, Scheiben und Plattendecken gegeben ist. Es soll im Sinne der nötigen Speichermasse in Massivbauweise gebaut werden, Holz wird für untergeordnete Bauteile und für Oberflächen im Sinne haptischer und stimmungsmäßiger Raumqualitäten eingesetzt.
Die Fassade gegen Norden ist bis auf die Ausnahme der Öffnungen von der Aula zum Freiraum hin sparsam verglast und hocheffizient gedämmt. Die Südfassaden sind zum Teil großzügig, jedoch nicht über die gesamt Fläche verglast: Parapete sind als Holzsitzelemente ausgeführt. Als Sonnenschutz dienen die weit ausladenden Vordächer über alle Ebenen, sowie ein begrünter Fassadenschleier zur Erzeugung eines guten Mikroklimas. Ebenso sind im Bereich des Sichthorizonts außenliegende, zugleich lichtlenkende Raffstores in einem Teilbereich der Verglasung angedacht. Darüber hinaus sind erdgeschossig viele Bäume als Schattenspender vorgesehen, die jedoch im Winter wiederum genug Licht in die Unterrichtsräume lassen. Die Vorschläge folgen einer kalkulierten Logik im Zusammenspiel von ökonomischen und ökologischen Vorgaben des Auslobers.
Das Objekt wurde grundsätzlich gemäß den Vorgaben des R+F-Programms entwickelt und hat damit seine gut funktionierende Autonomie. Was die Erarbeitung von Anbindungsmöglichkeiten an die NMS betrifft, sind – je nach Maßgabe der budgetären Mittel – verschiedene Konzepte angedacht und diagrammatisch dargestellt:
• Die Verlängerung des Vordaches bis zum Eingangsbereich der NMS
• Ein gedeckter Zugang am westlichen Ende des Objektes zu den Sporträumen der NMS und des Aktivparks
• Ein Brückenbauwerk aus dem Obergeschoße unmittelbar neben dem Turnsaal über die Erschließungsstraße hinweg.
Der schulbezogene Freiraum stellt sich als sorgfältig gegliederter und organisierter Bereich dar, der alle relevanten Funktionen aufnimmt und ordnet. In Verlängerung des Haupteingangs wird eine längliche Platzfläche angeboten, die eine klare Sichtbeziehung für Ankommende herstellt und mit Sitzbänken einen Vor-, Warte- und Abholbereich bildet. Daran angrenzend und durch eine lange Sitzbank getrennt befindet sich der Parkplatz. Mit Rasensteinen begrünt werden die Parkplätze durchgehend mit einer Überbreite von ca. 3m dimensioniert, um Baumpflanzungen und behindertengerechte Stellplätze flexibel unterbringen zu können. Für eine ausgewogene Gewichtung von Eingangsbereich und Parkfläche wird vorgeschlagen die südlichste Parkreihe über den daran angrenzenden südlichen Straßenbereich zu erschließen. Ausreichend Fahrradbügel werden überdacht in Eingangsnähe positioniert.
Der Pausenhof nimmt die klare Formensprache des Eingangsbereichs auf. Der Sonderschule vorgelagert werden den jeweiligen Klassenräumen zugeordnete durch üppige Begrünungen getrennte Freibereiche angeboten. Ein gesonderter Zugang für diesen Schultypus öffnet sich nach Süden und erlaubt ein sicheres Ankommen. Der Schulhof der Volksschule erstreckt sich über drei Geschosse. Im Erdgeschoss wird der gestalterische Duktus der Sonderschule fortgesetzt. Eine Treppenanlage, begleitet von einer Gebäudebegrünung, die auch als Sichtschutz zur Sonderschule dient, führt in das erste Obergeschoss. Trogbepflanzungen mit Ziergräsern und Stauden gliedern die Terrassenfläche und setzen die Grüngestaltung fort. Im zweiten Obergeschoss wird zusätzlich eine größere Beetfläche als didaktisch nutzbarer Gartenbereich angeboten.
LICHT – LUFT – SONNE – die BURG … und Grün vor den Fenstern
… eine neue Identität für den Schulcampus VS+ASO+ZMS Güssing!
- 年
- 2024
- Project Status
- 竣工済
- クライエント
- PEB Projektentwicklung Burgenland GmbH
- チーム
- Structural design: Woschitz Engineering ZT GmbH, Oberwart MEP: Woschitz Engineering ZT GmbH, Oberwart Building physics: RWT plus ZT GmbH, Vienna Landscape planning: lindle+bukor – atelier für landschaft, Vienna Construction supervision: Ingenieurbüro Puffing, Graz Construction supervision (electrical planning): TB Ing. Michael Urschler GmbH
























