Erweiterung Sunnenhof "das Zuhause im Alter"
Erweiterung Sunnenhof "das Zuhause im Alter", Immensee | Wettbewerb | Gewinner Alterswohnungen | 2.Preis Erweiterung Pflegewohnheim
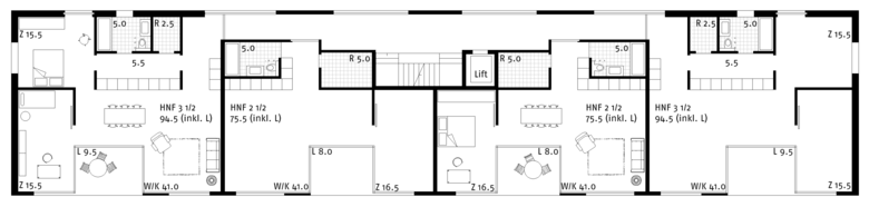
Alterswohnungen
Das neue Wohnhaus fügt sich analog zu den bestehenden Alterswohnungen entlang der Hangkante in das Ensemble ein. Alle Wohnungen sind klar nach Süden orientiert und profitieren von einem atemberaubenden Ausblick auf die Berglandschaft und den See. Wohnzimmer, Loggia und jeweils ein Zimmer bilden eine räumliche Einheit, die durch die entstehenden Blick- und Raumbezüge einen erhöhten Wohnkomfort und Nutzungsflexibilität bietet. Gleichzeit erhalten die Wohnungen durch die zentrale Lage der Loggia zwischen Wohnbereich und Zimmer ihren speziellen Charakter.
Konstruktion
Bei der Materialisierung und Konstruktion wird ein einheitliches Erscheinungsbild für die Erweiterung und das Wohnhaus angestrebt. Dadurch wird die Einheit der Gesamtanlage betont und gestärkt. Vorgeschlagen wird ein Massivbau, der mit Travertin verkleidet ist. Somit erhalten die Bauten eine nachhaltige und dauerhafte Aussenhaut, die durch strukturelle Öffnungen gegliedert wird und sich gut in die bestehende Landschaft integriert. Bei den Fenstern handelt es sich um Holz-Metallfenster mit aussenliegendem Sonnenschutz. Sämtliche Flachdächer weisen eine extensive Begrünung auf.
Parkierung
Das neue Parkdeck nützt die bestehende Topographie aus und schafft auf zwei Ebenen Parkmöglichkeiten, ohne als Gebäude in Erscheinung zu treten.
Projektverfasser
ARGE Ciriacidis Architekten GmbH | Forster & Uhl Architekten GmbH




