Umbau EFH Leumann-Kruesi
Umbau und Erweiterung eines Wohnhauses mit Flachdachservitut aus den 60er Jahren.
Die Quartierplanung und ein Grossteil der Gebäude des Leisibuels stammen aus den 60er Jahren. Die Planung enthält bindende Gestaltungsvorschriften, die das Erscheinungsbild der Einfamilienhäuser regeln. Insbesondere dürfen die Gebäude strassenseitig nur eingeschossig in Erscheinung treten und es gilt ein Flachdachservitut.
Die Bauherrschaft wünschte grössere Kinderzimmer und eine Erweiterung des Raumprogramms um Büro und Gästezimmer.
Küche und Nasszellen, die erst kürzlich saniert wurden, sollten erhalten bleiben.
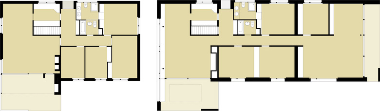
Neben diesen Anliegen verfolgten wir die Ziele, den Gartenbezug erlebbar zu machen, stärker zwischen öffentlicher und privater Seite zu unterscheiden und die bisher kaum erlebbare Aussicht zu thematisieren. Differenzierte Öffnungen im Osten, Süden und Westen des Volumens und die Offenheit der Anbindung der neuen Räume machten dies möglich. Die zugrundeliegende Raumabfolge Loggia – Wohnen – Gang – Büro – Loggia ergibt in West-Ost-Richtung eine Art Symmetrie, unter der sich alle weiteren Entscheide einordnen lassen. Auch die Fassadengestaltung folgt diesem Konzept: unter einem weissen Rahmen, der sich von Loggia zu Loggia spannt, steht der dunkel verputzte, beidseitig vollkommen offene „Wohnkörper“.
Das Gebäude wurde energetisch saniert, alle Oberflächen wurden erneuert: Schieferböden im Wohn-Bürobereich, Parkett in den Schlafräumen, Innenwände in Sumpfkalk.
Trotz des umfassenden Eingriffs bleibt die ursprüngliche Absicht der Gesamtplanung aus den 60er Jahren vollumfänglich erhalten. Erreicht wird dies nicht zuletzt dank dem zurückhaltenden Materialisierungskonzept und der Weiterführung der Architektursprache.
Projekt: 2002
Ausführung: 2003
- 年
- 2002








