Umbau Wohnung in Basel

Basel, スイス
写真 © Tom Bisig

Umbau und Sanierung einer Maisonettewohnung im Hochparterre und Sou Sol in einem mittelalterlichen Wohnhaus zwischen Oberen Rheinweg und Rheingasse an der belebten Rheinpromenade im Kleinbasel.

写真 © Tom Bisig
写真 © Tom Bisig
写真 © Tom Bisig
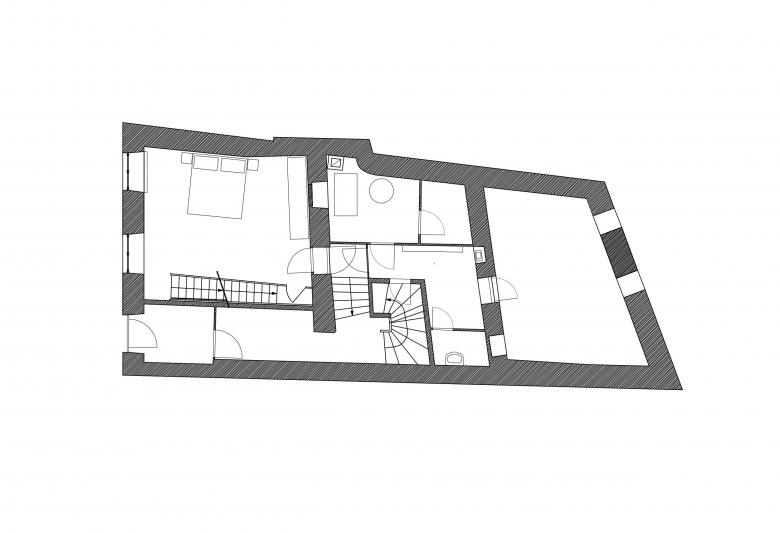
Sous Sol
図面 © Gschwind Architekten AG
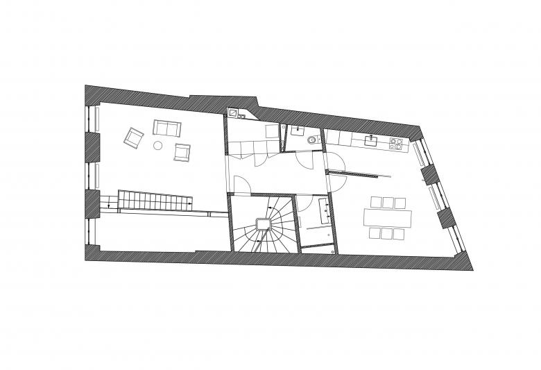
Hochparterre
図面 © Gschwind Architekten AG
2020
クライエント
privat

Gschwind Architekten AG BSA SIA によるその他のプロジェクト 

Sanierung Einfamilienhaus in Therwil
Therwil, スイス
Riederhalle in Ried bei Kerzers
Ried bei Kerzers, スイス
Demenzhaus+ Stiftung Obesunne
Arlesheim, スイス
Genossenschaftliche Wohnsiedlung in Ettingen
Ettingen, スイス
Dorfzentrum «Grimseltor»
Innertkirchen, スイス