Primarschulhaus mit Kindergarten und Doppelturnhalle in Therwil
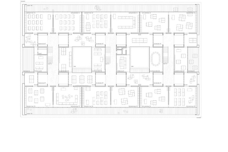
Das Schulareal befindet sich an der Nahtstelle dreier unterschiedlicher städtebaulicher Muster – westlich zu grossflächigen Gewerbehallen des angrenzenden Industriegebietes, nördlich zu punktförmigen Mehrfamiliengebäuden im Grünen und zu kleinen Einfamilienhäusern im Osten und Süden. Die zweiseitig begleitenden Bäche, die Blickbezüge zur bewaldeten Hügelkette im Osten und der Fernblick zum Blauen prägen die Atmosphäre des Ortes stark mit. Die städtebauliche Gradation, die raumprägende Fliessrichtung des Marchbaches mit seinem dichten Baumbestand, und die Geometrie des Areals formt die Baukörper und definiert die Aussenräume. Einem Geschwisterpaar ähnlich, bilden das Schulhaus mit integrierter Tagestruktur und Turnhalle sowie das eingeschossige Aula- und Kindergartenhaus zwei verwandte Gebäude. Die flachen Baukörper mit Bodenkontakt spannen unterschiedliche Aussenräume im Areal im Bezug zur Landschaft und Bebaung auf. Das Stapeln von Turnhalle und Schulnutzung bildet die Basis für eine in die Fläche entwickelte Lernlandschaft im 1. Obergeschoss welche über drei einläufige „Familientreppen“ mit jeweils vier Klassen via Eingangshalle vom Pausenplatz erreichbar ist. Zur Orientierung, zur Belichtung und zum visuellen Bezug der unterschiedlichen Nutzungen und Räume werden zwei begrünte Innenhöfe über zwei und drei Geschosse in das Volumen eingeschrieben. Die Cluster-Typologie des Schulgeschosses ermöglicht die Bildung von individuellen, kommunikativen Lernumgebungen unterschiedlichster Art und Grösse. Sämtliche Hauptklassenräume sind zweiseitig belichtet (Morgensonne) und erhalten dem Schulzimmer vorgelagert, ein „Sommergruppenraum“ in Form einer gedeckten Laube. Dies ermöglicht das temporäre Erweitern des Klassenzimmers ins „Freie“.
Im Kindergarten werden architektonische Themen des Schulhauses altersgerecht weitergeführt wie z. B. der Hof, die Raumstaffelung, die differenzierten Raumhöhen, und die mehrseitige Belichtung. Die Aula stellt ein polyvalentes Raumgefäss dar mit eigener Adresse für die Schule und die Öffentlichkeit. Die gewählte Organisation ermöglicht eine wandelbare Bespielung und räumliche Anpassung je nach Anlass. Mit der Mischbauweise (Zwischendecken, Innenwände massiv, Dächer und Aussenwände in Holz, Fassade in Skelettbauweise aus Beton) wird eine nachhaltige, recyclingfähige, grauenergiearme oekonomische Konstruktion gewählt. Das Material sowie die Formal zurückhaltende äussere Erscheinung welche durch architypisch-traditionelle Bauelemente, wie zum Beispiel die Holzfassade mit schützenden Vordächer, geprägt wird, lädt die Kinder zur aktiven Inbesitznahme und dem Begreifen des Gebäudes ein. Wo möglich werden Baumaterialien, die Technik sowie die räumlich strukturelle Ordnung unverkleidet sichtbar gehalten.
- 年
- 2018
- クライエント
- Gemeinde Therwil


























