Villa K
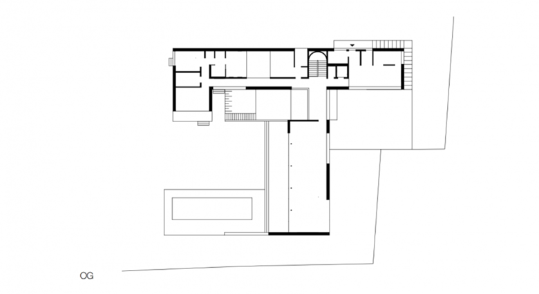
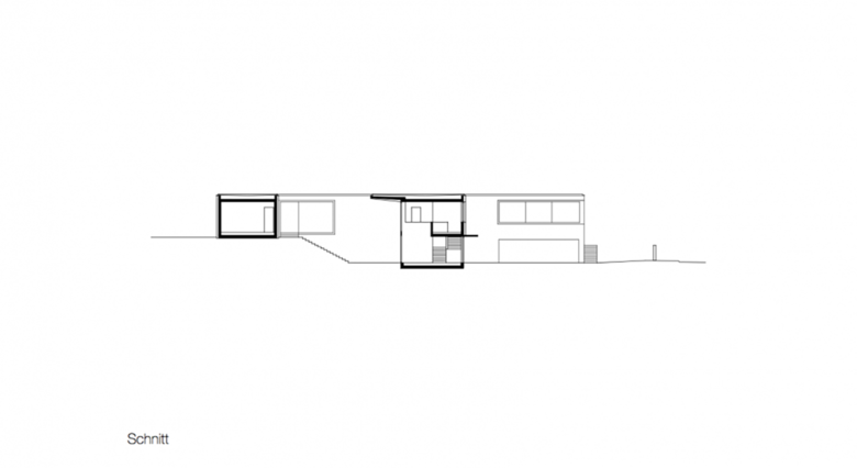
Die Villa K wird auf dem Areal einer ehemaligen Gärtnerei im 19. Wiener Gemeindebezirk errichtet. Aufgrund der Nutzung wurde damals das ca. 2.400 m² große Grundstück eingeebnet, wodurch eine besondere topographische Situation mit einer Böschungskante zum Straßenraum entstand.
Aus dieser Gegebenheit wird das Konzept des Hauses entwickelt. Drei Flügel gliedern das Areal, nehmen die vorhandenen Höhenlagen auf und fassen den Außenraum. Zur Straße erscheint das Gebäude zweigeschossig, der Eingangsbereich öffnet sich in einen Innenhof mit Blick auf den Gartenbereich im Obergeschoss.
Über der Garage ist eine Einliegerwohnung mit separatem, nordseitig gelegenem Eingang situiert. Die verschiedenen Wohnbereiche sind ebenerdig um den geschützten Garten und Pool angeordnet.
Über eine zweigeschossige Eingangshalle mit vorgelagertem Hof, betritt man die Villa und erreicht über eine gerundete Treppe das Gartengeschoss. Hier befinden sich Küche, Essbereich, Wohnen und der Medienraum und weiters ein Gästebereich, Fitnessraum mit Sauna und einem kleinen Innenhof, Bad, Ankleide und Schlafzimmer des Hausherren, von dem man auch einen Blick auf den Stephansdom hat.
- 年
- 2015
- Project Status
- 竣工済
- クライエント
- Privat
















