Wohnhaus Surber Burri
«Raumplan im Archetyp»
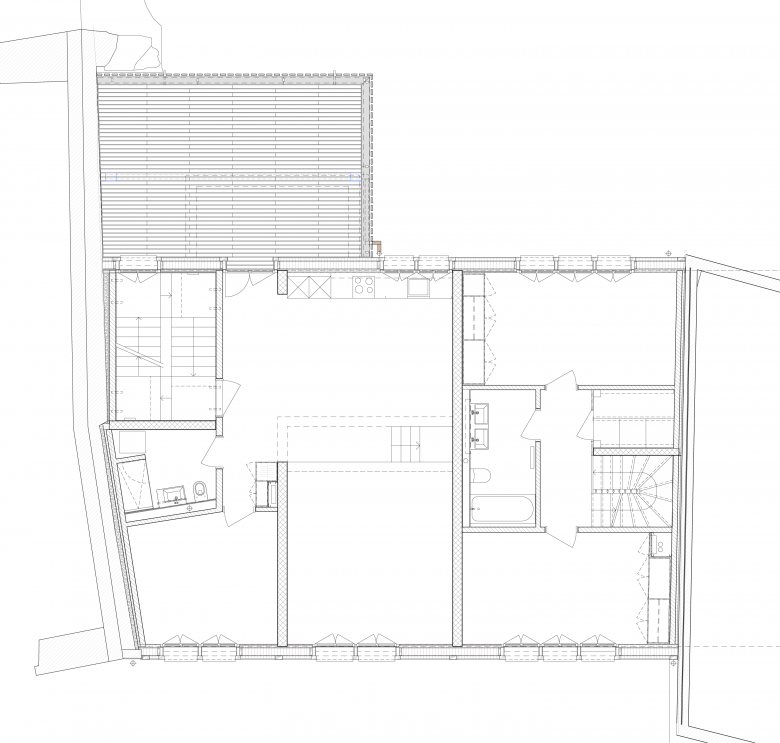
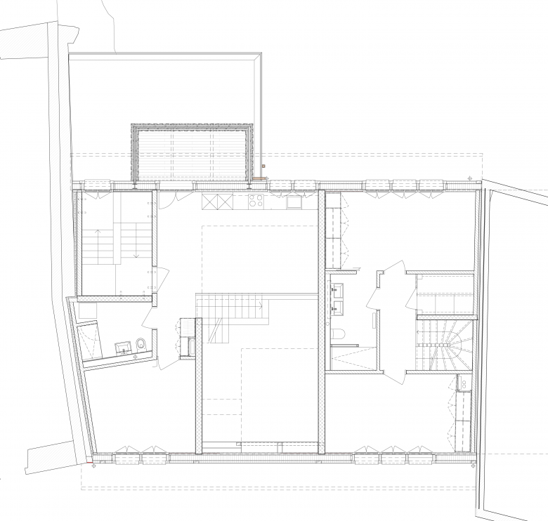
In der ortsbildgeschützten, mittelalterlichen Stadt bildet der Ersatzneubau zwischen den Brandmauern der Nachbarn das Profil des heutigen Bestandes nach. Der nördliche Schopf wird zum hölzernen Wohnraum der Eigentümer mit darüberliegender Terrasse transformiert.
Die mittigen Tagesbereiche der grossen Wohnung der Eigentümer und der beiden kleineren Mietwohnungen sind übereinander angeordnet, als Raumplan organisiert und durchstossen das Gebäude von Norden nach Süden. Angrenzend sind beidseitig die Schlafzimmer, Bäder und Nebenräume mit normalen Raumhöhen ergänzt.
Die Gebäudehülle ist als selbsttragende, gedämmte Zimmermannskonstruktion ausgebildet, welche wie ein ortsüblicher, verputzter Riegelbau die innere Raumordnung nach aussen ausdrückt. Die Wandoberflächen des Innern mit betonierten, gemauerten oder hölzernen Wänden werden weiss geschlämmt.
Auszeichnung:
best architects 2023
- 年
- 2021
- Bauherrschaft
- privat
- Fotografie
- David Willen
- Termine
- 2019–2021









