Schaffhausen (CH), Breite: Quartiersentwicklung
Grundsätzlich versucht unser Entwurf, das Vorhandene in seinem Charakter zu stärken, den Kontext intensiver zu vernetzen und dabei so wenig wie möglich zu
verändern.
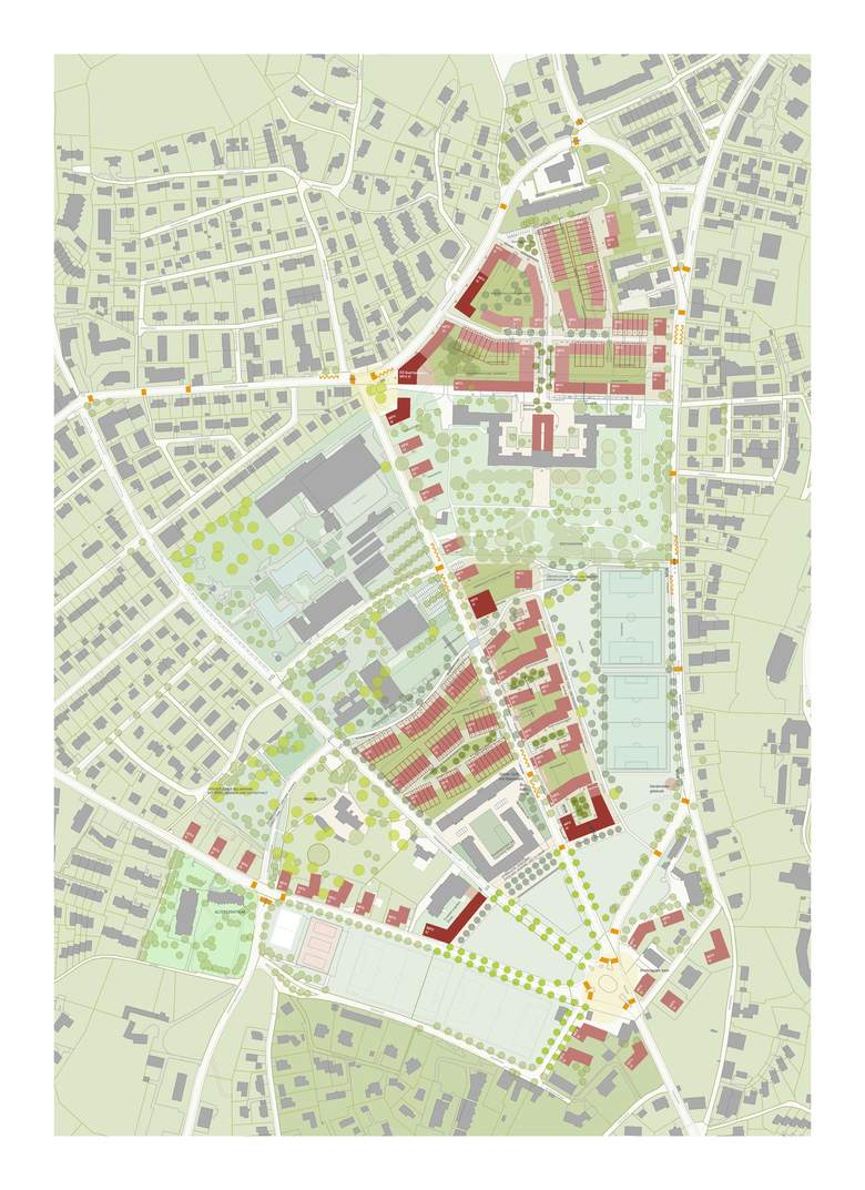
Plötzlich die Weite:
Hat man heute bei der Fahrt auf die Breite den bebauten Hang und die Engstelle beim Schützenhaus überwunden, öffnet sich plötzlich die Ebene der Allmend mit ihren Brachen und Sportplätzen. Gegenüber liegt das Zeughaus als Torbau zum Inneren des Quartiers Breite, das von der Allmend sichelförmig umfasst wird – wobei beide Hörner der Sichel im grünen Parkraum einer öffentlichen Institution enden: im Osten bei der Klinik Breitenau, im Westen beim
Alterszentrum. Diese sehr besondere Raumkonstellation wollen wir
beibehalten.
Strahlen:
Vom Schützenhaus aus wird das Quartier strahlenförmig erschlossen. Unser Vorschlag entwickelt für jede Strasse einen eigenen Charakter: Die
Rietstrasse als „Stadtrandstrasse“ entlang der grünen Sichel, die Randenstrasse als grüne Miete, die Breitenaustrasse als innere Hauptstrasse und die
Nordstrasse als übergeordnete Hauptstrasse. Entsprechend unterschiedlich ist die vorgeschlagene Bebauung.
Eine neue Langsamverkehrsverbindung nimmt die Achse der Klinik Breitenau auf und führt vom Kirchturm im Süden auf die Klinik zu. Sie etabliert dabei
gleichzeitig die Grenze zwischen den Sportplätzen an der Nordstrasse und der Wohnbebauung an der Breitenaustrasse. Nördlich der Klink setzt sich die
Wegachse bis zur Hohlenbaumstrasse fort, wo sie an den bestehenden Waldrandweg anschließt. Sofern es gelingt, den Durchgang durch den Mittelrisalit der Klinik Breitenau künftig tagsüber für die Öffentlichkeit
zu öffnen, entsteht damit ein neue, verkehrsgeschützte Grünverbindung von der Allmend in die freie Landschaft im Norden, die dem Fächer des Wegenetzes
auf der Breite einen neuen Strahl hinzufügt.
- 年
- 2018
- Landschaft
- planetage
- Mobilität
- Basler&Hofmann




