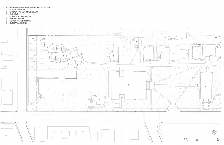
Winter Visual Arts Building, Franklin & Marshall
Lancaster, PA, USA
On the historic campus of Franklin & Marshall College, the new Winter Visual Arts Building takes shape as a raised pavilion formed by the site’s 200-year old trees, the oldest elements of the campus. A new campus destination for all students, the building’s spaces aim to evoke the creative energy involved in teaching and making art.
Creating a Sense of Place
Drawing on Franklin & Marshall College’s motto Lux et Lex the new building for the Department is conceived as ‘light’ in complementary/contrast to the ‘heavy’ exemplary brick architecture of the 1856 ‘Old Main’ original campus building. A gradual exterior ramp connects from Old Main’s axis to a second-floor entrance of our new building, just above a ground floor entrance facing the newly formed ’Arts Quad’.
The large diameter trees, the oldest elements of the Franklin & Marshall’s 52-acre arboretum campus, were the conceptual generator of the building’s geometry. As a lightweight building, its main floor is lifted into the trees on a porous ground level open to the campus and the adjacent Buchanan Park. The reflections of the hovering building at night glowing in the water of a large reflecting pool add to the special articulation of this place.
Inspiring Space for Making and Teaching Art
The 33,000 sf Winter Visual Arts Building is the center of creative life on campus. The universal language of art enabled by the building’s spaces brings together students from diverse cultures to collaborate on arts projects. On the Ground Floor a Forum and suite of galleries draw in the surrounding community of Lancaster to engage with the College around arts events and exhibitions. Sculpture studios, involving heavy objects, are adjacent to ground floor loading and an open-air sculpture yard. Digital Labs are located below grade due to their need for minimal light and receive a daylight glow from round skylights.
The second-floor studios – for drawing, design, printmaking, painting, woodworking, and cinema - are efficiently organized around a ‘Commons’ gathering space for students which doubles as an informal presentation space. All studios receive natural light through the translucent façade and have an operable viewing window and skylights. Faculty studios and Art History seminar rooms are set on a Mezzanine overlooking the teaching studios, filling the building’s volume while allowing double-height studios of inspiring space.
Practical and Innovative
The lightweight, two-story ‘box-kite’ steel frame sits on two ground floor concrete rectangles to create the dramatic cantilevers and arced geometry with precision and economy. Thin truss frames sit within the 2nd floor studio walls and support bent steel tubes spanning between them. SHA used 3D modeling to develop and coordinate the construction documents with the team, allowing contractors to build the complex geometry efficiently and precisely. The entire roof structure is exposed, and the steel tubes are rolled at one radius and then tilted in place to create the curved roof geometry. The three-inch-deep, tongue and groove fir planks that rest on the bent tubes create a billowing ceiling. They are simply fastened to the top of the bent steel and, given the tolerance of wood, they create this soft curved ceiling for an inspiring learning space.
Ecological Excellence
Curved translucent glass walls are formed by a double-layer U-plank structural glass system filled with translucent insulation for high thermal performance and 19% light transmission, ideal for studio light. Natural light and ventilation along with active slab heating and cooling contribute to LEED Gold status. All the trees on site were maintained and their roots were protected during the entire construction process. The importance of preserving the trees is evident in the building’s curved form, preserving their drip line. Maintaining the indigenous plants on site provide minimum maintenance and minimum disturbance to the existing ecology.
Air/Light/Greenspace: Post Covid
The Winter Visual Arts Building is currently in use by students as the Franklin & Marshall campus has opened for the academic year. The building, embodying SHA’s design philosophy, naturally adapts to COVID necessities such as social distancing and fresh air. It offers generous social/circulation space, with two main entries on different levels that enable one-way flow when needed, abundant daylight to all rooms, natural ventilation, and outdoor terraces. The architecture is deeply connected to its verdant, park-like campus setting, a restorative place within nature.
- Architetti
- Steven Holl Architects
- Anno
- 2020
- Cliente
- Franklin & Marshall College
- Team
- Steven Holl (design architect/principal), Chris McVoy (partner in charge), Garrick Ambrose (project architect), Carolina Cohen Freue (assistant project architect), Dominik Sigg, Marcus Carter, Elise Riley, Michael Haddy, Hannah LaSota
- Structural Engineer
- Silman Associates
- MEP Engineer
- ICOR Associates
- Civil Engineer
- David Miller Associates
- Climate Engineer
- Transsolar
- Landscape Architect
- Hollander Design
- Facade Consultant
- Knippers Helbig Advanced Engineering
- Lighting Consultant
- L’Observatoire International
- Acoustical Consultant
- Harvey Marshall Berling Associates
- Pool Consultant
- Aqua Design International
Progetti collegati
Rivista
-
-
Building of the Week
A Loop for the Arts: The Xiao Feng Art Museum in Hangzhou
Eduard Kögel, ZAO / Zhang Ke Architecture Office | 15.12.2025 -


























