Trapezium House
Bengaluru, India
A typical suburban trapezoidal corner plot with equally typical programmatic requirements of a working couple with children.
The odd shape of the plot flanked on two sides with vehicular arteries, the need of visual privacy from the neighboring built form,elaborate functional requirements that resulted in high density built mass owing to the building bye laws along with superimposition of traditional code of "Vastu Shashtra" gave rise to a very pragmatic manifestation of design processes.
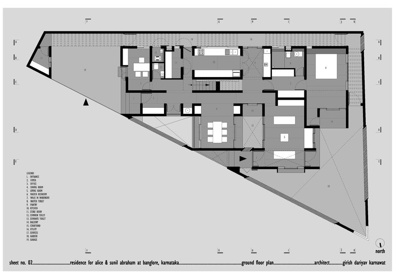
The entry was located from the garage on the north-east of the property with access to a small office space and family entrance to the house.Living/dinning/master bedroom/kitchen with associated services formed the plan configuration on ground floor with children's bedroom/study/guest room/family room forming the layout on the first floor.Owing to the density a conscious attempt was made to lighten it up by inserting courtyards,verandahs and opening up facades and engaging the external spaces between the outer layer and boundary walls..
Basement has an additional bedroom that also doubles up as a space for yoga.
South facade is completely blanked out with punctuation of skylights.A secondary entrance for guests is provided in the north facade to access living room directly.
Choice of structure was a composite construction made of 6" wide concrete block load bearing walls and 6"X6"reinforced cement columns at the corners of the walls.External surface have sand faced plaster.Aluminum, Steel, Wood and Plywood have been used for loose and fixed furniture.Flooring is laid with a locally available granite.
This projects is purely an exercise in achieving scales/proportions of forms,spaces and massing and clarity in terms of circulation and structure as also setting a perforated typology within the fast growing dense urban massing.











