Neugestaltung Cafeteria Cilag
Schaffhausen, Svizzera
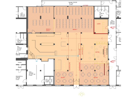
Im Auftrag der Cilag soll die Mensa auf dem Firmenareal an der Hochstrasse sanft renoviert und optisch aufgewertet werden. Die in die Jahre gekommene Anlage (Stand 1994) soll wieder ein einladender, frischer Raum werden.
Es sollen insgesamt mehr Plätze angeboten werden können. Die bestehende Situation ist durch den Pausenraum der Schichtarbeiter und die diversen anderen Einbauten räumlich verstellt. Es stehen keine grossen zusammenhängenden Flächen zu Verfügung.
Die vergleichsweise kleine Fensterfläche beim Eingang, kann den sehr tiefen Raum nur bedingt ausleuchten. Die rückwertige Wand mit Glasbausteinen war früher noch Aussenraum und gab zusätzliches Licht.
Das Konzept sieht ein rigoroses ausräumen der gesamten Fläche vor und optimiert die betrieblichen Abläufe. Neue Oberflächen am Boden, an der Decke und an den Wänden vereinen die verschiedenen Zonen zu einem einheitlichen Ganzen. Auf eine gute Ausleuchtung und dem Zusammenspiel von Natur- und Kunstlicht wurde besonders geachtet. Die Lichtwand im rückwertigen Teil des Raumes soll eine optimale Ergänzung sein zum Sonnenlicht an der Fassadenfront und auch in dieser Zone ein guter Aufenthaltsort sein.
- Architetti
- Oechsli + Partner
- Anno
- 2013










