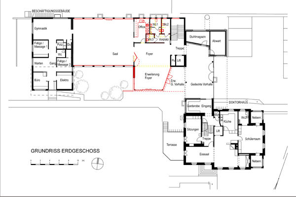
Umbau und Erweiterung Beschäftigungsgebäude Ilgenpark

Der ILGENPARK in Ramsen ist ein Wohn- und Beschäftigungsbetrieb für behinderte erwachsene Menschen. Die räumliche Situation im Beschäftigungsgebäude genügte den heutigen Anforderungen nicht mehr. Zudem mussten alle Installationen, die Küche, die Nasszellen sowie die Fenster neu gemacht werden. Um der Platznot gerecht zu werden, wurde ein neues Foyer mit darüber liegender Terrasse erstellt. Der Anbau fügt sich in die bestehende Situation ein und öffnet sich mit einer grossen Fensterfront Richtung Garten. Neben den neuen Einbauten und Installationen wurde das Beschäftigungsgebäude sanft renoviert.

Anno
2015

Altri progetti di Oechsli + Partner 

Neubau 4 MFH im Güetli
Schaffhausen, Svizzera
Umbau/Neubau Alterswohnungen
Dörflingen, Svizzera
Fassadensanierung Staatsarchiv und Gerichtsgebäude
Schaffhausen, Svizzera
Neugestaltung Cafeteria Cilag
Schaffhausen, Svizzera
Umbau und Sanierung Vorstadt 13
Schaffhausen, Svizzera