Erweiterung Schulanlage Rain
Städtebauliches & architektonisches Konzept Projekt "Tom & Jerry"
Die bestehende Schulanlage Rain, welche in mehreren Etappen erbaut wurde, wird um ein geschickt in die Topographie eingebettetes Gebäudevolumen ergänzt.
Die präzise Setzung des Gebäudevolumens ermöglicht es, die heterogene städtebauliche Situation zu beruhigen. Der Erweiterungsbau vermittelt zwischen den vorgefundenen städtebaulichen Typologien und fungiert somit als Bindeglied zwischen Schulanlage und Wohnquartier. In der Gesamtstruktur vom Quartier wird der Baukörper mit seiner Erscheinung als öffentlicher Bau wahrgenommen.
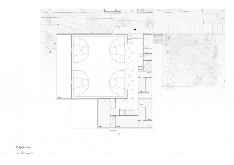
Sowohl die Adressierung der Doppelsporthalle als auch der Schulerweiterung erfolgt mit einer klaren Geste. Auf der Schulebene liegt der Haupteingang zu den Schulnutzungen an einem für die Schulanlage Rain typischen Zwischenplatz, der auch als Pausenraum zur Verfügung steht. Der überdachte Haupteingang ist von beiden Durchgängen der bestehenden Schulanlage einsehbar. Die Doppelsporthalle wird im Erdgeschoss auf dem Niveau der Aussensportplätze mit Bezug zu den Parkierungsanlagen im Norden und Osten adressiert, wodurch Synergien im Betrieb der Sportnutzungen insbesondere für Vereine sichergestellt werden können. Die beiden Kindergärten werden separat über einen Zugang im Süden erschlossen.
Die städtebauliche Konzeption der Schulraumerweiterung greift die Qualität der vorgefundenen Platzfolgen mit den ineinanderfliessenden, teils gedeckten Aussenräumen auf und führt die erwähnte Platzfolge mit einer klaren neuen Adresse für die Schulnutzungen auf den Niveau des Schulhauses Feldmatt konsequent fort. Das Platz-Wegkonzept der Schule Rain wird gestärkt.
In der Platzfolge werden durch die Setzung des neuen Gebäudevolumens die vorhandenen Freiraumproportionen übernommen, wodurch sich der Neubau mit den bestehenden Bildungsbauten selbstverständlich zu einer Gesamtanlage zusammenfügt.
Dank der Setzung des Gebäudevolumens wird im Süden ein grosszügiger Aussenraum freigespielt, der den Kindergartenklassen zugeordnet wird. Der separate Zugang mit der zugehörigen Durchwegung trägt zur Eigenständigkeit des Aussenraums der Kindergärten bei und entspricht somit den betrieblichen Anforderungen. Hier entstehen die gewünschten «Gärten für kleinere Kinder» für einen sorglosen Pausenbetrieb mit guter Übersicht für die Betreuenden.
- Anno
- 2023
- Project Status
- Progetto
- Team
- Nicolas Hunkeler, Patrick Suhner
- Landschaftsarchitekt
- Weber + Brönnimann AG
- Bauingenieur
- WaltGalmarini AG Zürich
- Bauphysik
- Gartenmann Engineering AG
- Visualisierung
- indievisual AG Zürich
- Offener Wettbewerb, einstufig
- 3. Rang











