Espresso Bar Unterberger
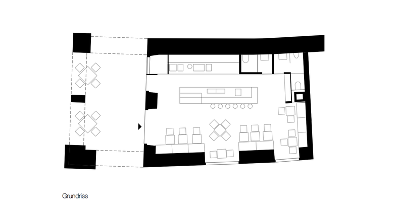
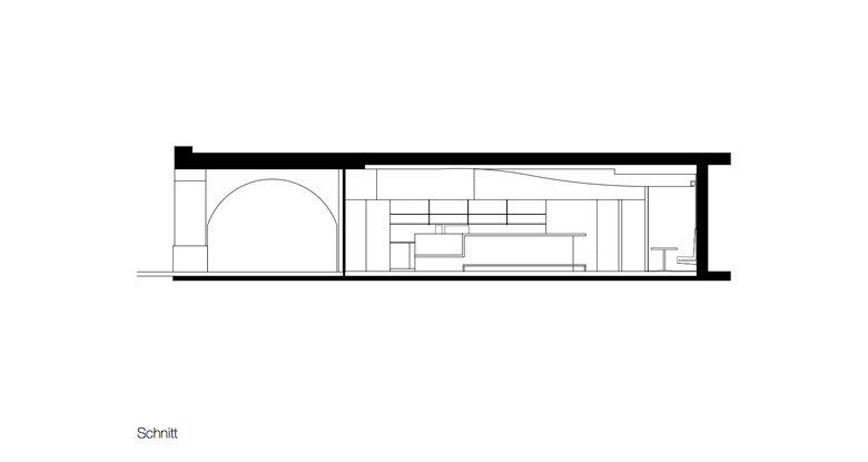
Die EspressoBar Unterberger befindet sich inmitten der Altstadt Feldkirchs in einem Jugendstilhaus aus dem Jahr 1905. Sie versteht sich als öffentlicher Raum im urbanen Gefüge mit großzügigen Öffnungen Richtung Gastgarten bzw. Fußgängerzone. Durch die zentrale Position – in der Mitte des Marktplatzes - entsteht ein Ort lebendiger Durchmischung von Passanten und Gästen. Ein schneller Kaffee im Stehen oder Beobachten und Verweilen, die Grenze zwischen innen und außen wird aufgehoben. Verstärkt wird dieser Eindruck durch den erneuerten Boden, einen geschliffenen Estrich natur, der sich mit seinen Gebrauchsspuren dem Außenraum annähert. In den tiefen Raum hinein führt neben der langgestreckten Bar aus schwarzem Stahl der sanfte Schwung der curryfarbenen Decke, der in einem breiten Spiegel am Raumende fortgesetzt wird. Die Farbwahl im Inneren harmoniert mit den Kaffeebohnen, die in den Scheibenzwischenraum der Fassadengläser gefüllt wurden: Die Wände sind mit schwarzem Schultafellack beschichtet oder der Putz ecru gestrichen, die Einbaumöbel aus Wenge, die lederbezogenen Sitzbänke abgestimmt auf das Braun der Kunststoffstühle und der Barhocker. Als Metapher zum Tischtuch sind die Tische weiß und vermitteln gemeinsam mit der amorphen Leuchte über der Bar eine elegante Atmosphäre. Ausgestattet mit Video-Beamer und Leinwand kann der Raum auch für Präsentationen genutzt werden.
- Anno
- 2003
- Project Status
- Costruito
- Cliente
- Christine und Josef Auer









