Moderne Arbeitsräume und ein offenes, helles Ambiente prägen den neuen Erweiterungsbau der Bezirksverwaltung Ostholstein am Standort Eutin. Cradle-to-Cradle-Prinzipien sowie Holz im Sinne der Nachhaltigkeit spielten beim Entwurf von Bieling Architekten, Hamburg, eine entscheidende Rolle. Aus diesem Grund wurde das Flucht-Treppenhaus in Holzhybridbauweise realisiert. Bei der Trittschalldämmung setzten die Baubeteiligen auf verschiedene Typen von Schöck Tronsole. Das Trittschalldämmelement entpuppte sich dabei als effektive Lösung, um die geforderten Trittschalldämmwerte auch im Holzhybridbau zu erreichen.
Die Kreisverwaltung Ostholstein in Eutin mit rund 500 Mitarbeitenden ist in einem denkmalgeschützten Altbau und in Ergänzungsbauten aus den Jahren 1978/79 untergebracht. Das Ensemble kann den Raumbedarf jedoch seit Langem nicht mehr decken. Im Innenhof des denkmalgeschützten Haupthauses realisierte die Kreisverwaltung als Bauherr daher nach dem Entwurf von Bieling Architekten, Hamburg, einen dreigeschossigen Erweiterungsbau.
Harmonisch integriert
Der gestalterische Ansatz von Bieling Architekten sah einen ruhigen Baukörper vor, der sich harmonisch in das Gefüge der Bestandsgebäude integriert.
Für die Fassadenbekleidung wählten die Architekten Faserzementplatten. „Mit der mineralischen Anmutung der Fassade stellen wir einen Bezug zu Norddeutschland her, wo ja traditionell roter Klinker vorherrschend ist, und geben der Holzkonstruktion mit Ausführung einer vorgehängten hinterlüfteten Fassade dennoch eine materialgerechte Leichtigkeit“, erklärt Christoph von Lossow von Bieling Architekten.
Das Bürokonzept vereint über drei Geschosse 44 Einzel- und sechs Doppelbüros sowie eine Multifunktionszone mit sieben geschlossenen Besprechungsräumen für einen ungestörten Austausch. Ein Gang auf Höhe des ersten Obergeschosses schafft die Verbindung zum historischen Haupthaus. Die kompakte und durchdachte Form des Neubaus erlaubt zudem im Bedarfsfall eine nachträgliche winkelförmige Erweiterung.
Nachhaltiges Konzept in Holz-Hybrid-Bauweise
Bei der Ausführung des neuen Gebäudes legte der Bauherr Wert auf eine hohe Qualität der Arbeitsplätze und eine nachhaltige Bauweise.
Deshalb wurde der Erweiterungstrakt in Holzhybridbauweise realisiert – eine für Norddeutschland bislang eher ungewöhnliche Bauweise. Der Skelettbau mit Holzstützen und -hauptträger ruht auf einem massiv hergestellten Untergeschoss. In den Geschossen darüber wurde vor allem der Baustoff Holz verwendet.
Stahlbeton kam nur für die Fertigteilelemente in der Holzbetonverbunddecke, für den Aufzugsschacht und für die Treppenläufe des Flucht-Treppenhauses zum Einsatz. Während die Treppenhauswände für die räumliche Aussteifung und den vertikalen Lastabtrag in Massivholz ausgeführt sind, wurden die Betonfertigteiltreppenläufe und -podeste aus Brandschutzgründen aber auch als kostengünstige, robuste und optisch ansprechende Lösung eingebaut. Bei den Wänden handelt es sich um Cross-laminated-Timber-Wände, die – ebenfalls aus Brandschutzgründen – mit 2x 2-lagen Gipskarton verkleidet sind. Treppenläufe aus klassisch grauem Sichtbeton, ein filigranes, weißes Blech mit Holzhandlauf als Geländer im Treppenauge und Granitnaturstein für die nötige Trittsicherheit im vorderen Teil der Treppenstufen sorgen hier für eine hochwertige Ausführung.
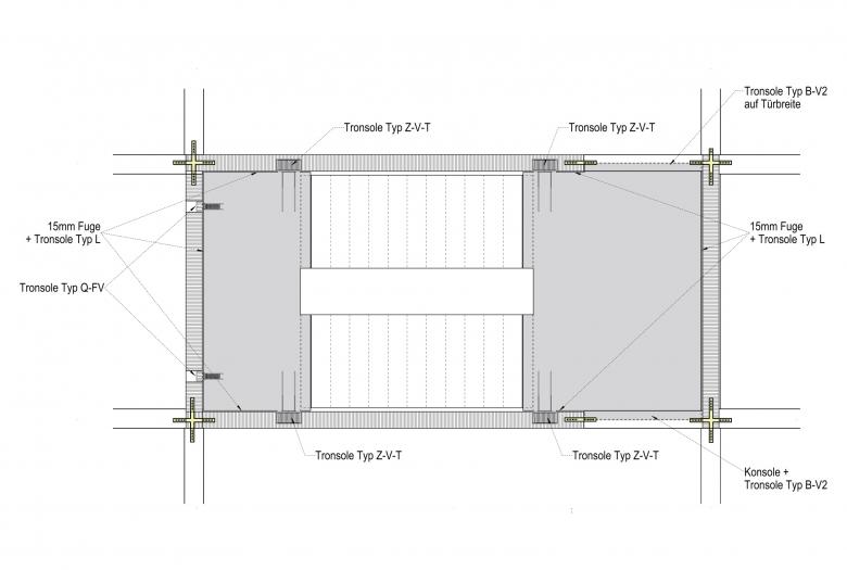
Die Kombination von Stahlbetontreppe und Holzwand stellte den Trittschallschutz vor Herausforderungen, die mit Schöck Tronsole gemeistert werden konnten.
Trittschallschutz im Holz-Hybridbau – ein Novum
Um die Anforderungen von 53 dB an den Trittschallschutz der Treppen einzuhalten, wurden zur Entkopplung des Flucht-Treppenhauses verschiedene Typen von Schöck Tronsole eingesetzt: In der rückwärtigen Wand wurden zwei Trittschalldämmelemente vom Typ Q eingebaut. In den seitlichen Wänden kam Tronsole Typ Z zum Einsatz. Beim Hauptpodest wurden an der Vorderseite jeweils zwei Tronsole Typ Z sowie längs auf der Treppenhauswand zwei Tronsole Typ B eingebaut.
Der Einsatz des Trittschalldämmelements im Holzhybridbau ist ein Novum, wie Liam Owen Winckler von DREWES + Speth berichtet: „Der Erschließungskern und das Treppenhaus werden im Holz- und Holzhybridbau in der Regel aus Massivbeton erstellt. Dabei ist für die Montage und den Bauablauf eines Holzbaus eine konsequente vertikale Tragstruktur aus Holz wenn möglich die zielführendste Lösung. Somit hatten wir es mit einem Stahlbeton Massivtreppenlauf an Massiv-Holzwänden zu tun. Wir standen daher vor der Frage, ob eine Tronsole die Entkopplung und damit den Schallschutz sicherstellen kann.“ Zur Klärung wandte sich der Ingenieur an die Mitarbeiter von Schöck, die auch sofort bereit waren, zu helfen. „Das offene Ohr, schnell technisch zu unterstützen, zeichnet Schöck ja generell aus“, sagt Winckler. Ausschlaggebend für ihn, den Versuch zu wagen, waren die sehr guten Trittschallkennwerte von Schöck Tronsole, die viel Luft nach oben haben sowie das Vertrauen in die Expertise des Herstellers.
Wissenschaftliche Begleitung
Da es in Deutschland bislang jedoch wenig Erfahrung und messbare Daten zum Schallschutz im Holzbau bzw. im Holzhybridbau gibt, hat Schöck die Trittschalldämmung wissenschaftlich durch Christoph Fichtel, Geschäftsführer der STEP GmbH aus Winnenden, begleiten und prüfen lassen. Der Bauphysiker, der für den Bauteile-Experten auch Messungen im Prüfstand durchführt, sagt dazu: „Wir schauen immer nach interessanten Bauobjekten, weil wir wissen wollen, wie sich die auf dem Prüfstand generierten Ergebnisse auch am Bau widerspiegeln und ob, beziehungsweise inwieweit sie sich 1:1 übertragen lassen."
Tatsächlich ist es nicht so einfach, die Schallübertragung bei Holz im Vergleich zum Massivbau ausschließlich über eine rechnerische Prognose zu bewerten – zu viele Faktoren wie Masse oder innere Dämpfung spielen hier laut Christoph Fichtel eine Rolle: „Holz ist einfach anders. Deshalb waren die Messungen in Eutin so wichtig. Man hat hier das erste Mal eine Abnahmemessung durchgeführt, um zu prüfen, ob die Schöck Produkte auch im Holzbau funktionieren.“
Trittschall-Messungen – beste Werte dank Schöck Tronsole
Die erste Messung wurde im Rohbaustadium, als die Trockenbau-Wände noch nicht erstellt waren, vorgenommen und erfolgte daher über Körperschallaufnehmer anstatt über eine direkte Luftschallmessung mittels Mikrofon. „Körperschallaufnehmer sind Schnellepegelmesser, die auf die Holzbetonverbunddecke geklebt wurden. Das war das einzige Bauteil, das in den Raum abstrahlen konnte“, erklärt Christoph Fichtel.
Aus den gemessenen Körperschallpegeln wurde rechnerisch der resultierende Norm-Trittschallpegel – die maßgebliche Größe zur Bewertung der Einhaltung von Trittschallanforderungen – berechnet. „Im Vorfeld haben wir auf Grundlage der Prüfstandsmessungen rechnerisch abgeschätzt, dass mit der Schöck Tronsole aufgrund der sehr guten Trittschalldämmwerte die Anforderungswerte an den Trittschallschutz auch beim Einbau in Treppenhauswänden aus Holz erreicht werden können“, sagt Christoph Fichtel. „Mit den Messungen im Rohbau hat sich diese Annahme bestätigt.“ Mit Schöck Tronsole wurden die geforderten Werte von 53 dB im Holzhybridbau nicht nur erreicht, sondern liegen deutlich unter dem geforderten Wert.
Abnahme-Messung bestätigt die Eignung von Schöck Tronsole auch für den Holzhybridbau
Doch Schöck wollte ganz sicher gehen: Nach Fertigstellung des Gebäudes wurde die Gelegenheit genutzt, die im Rohbauzustand über Körperschallmessung ermittelte Trittschalldämmung zu überprüfen. Da nun alle Wände eingezogen und das Gebäude im bezugsfertigen Zustand war, war eine direkte Messung des Norm-Trittschallpegels über Luftschall möglich. Der Prüfbericht zeigte, dass die Schallschutzanforderungen eingehalten werden, da die Werte sogar um einige dB unterschritten werden. Damit ist die Eignung von Schöck Tronsole für den Holzhybridbau bestätigt. Für die Mitarbeiter der Kreisverwaltung Eutin heißt das: Die angenehme Arbeitsatmosphäre im Neubau wird zusätzlich durch einen geringeren Lärmpegel unterstützt.
Kreisverwaltung Eutin
Retour à la liste des projets- Lieu
- Lübecker Straße 41, 23701 Eutin, Allemagne
- Année
- 2025
- Client
- Kreis Ostholstein
- Architekt
- Bieling Architekten
- Tragwerksplanung und Gebäudetechnik
- KSK Ingenieure GmbH & Co.KG
- Tragwerkplanung und Gebäudetechnik
- DREWES + SPETH
- Trittschallmessung
- STEP GmbH




