Hotel an der Spree
Den Anforderungen an spannungsreiche Innenräume, einen kleinen Balkon je Einheit und dem Leitgedanken eines, im Detail prägnanten, im Gesamten jedoch homogenen Baukörpers entsprechend, ermöglicht eine gefaltete Fassadenstruktur zahlreiche Außenraumbezüge in den Lofts und ein kristallines, vielschichtiges Erscheinungsbild zum Außenraum.
Im Erdgeschoss betritt der Besucher eine Hotellobby mit Empfang und Administration sowie eine Bar nebst Restaurant mit Küche für eine gehobene Gastronomie und Außensitzflächen an der Spree. Auf zwei weiteren Ebenen gibt es Spa-, Sauna- und Fitnessbereiche ebenfalls mit Außenflächen.
Bauherr
Agromex GmbH & Co. KG
Auftragsumfang
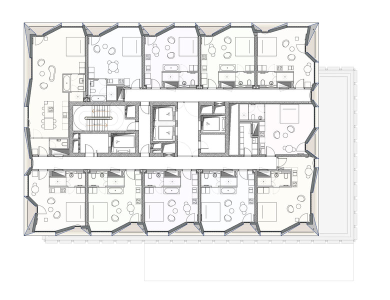
Apartmenthotel, 180 Liftzimmer von 30 bis 60 qm mit Kochnische und Balkon. Erdgeschoss mit Hotellobby und Administration, Restaurant und Bar mit Außensitzflächen an der Spree. Spa-, Sauna- und Fitnessbereiche ebenfalls mit Außenflächen
Leistungsumfang
Entwurf bis Genehmigungsplanung HOAI Lph. 1 bis 4, Teilleistungen Ausführungsplanung HOAI Lph. 5, Zuarbeit Vorhabenbezogener Bebauungsplan
Kenndaten
Größe: Hotel BGF 13.700 qm
Ausführung: Baubeginn 2016 (geplant)
Internationaler zweiphasiger Realisierungswettbewerb 2012, 1. Preis
- Année
- 2017
- Project Status
- En construction





