Generationenpark am Festplatz
Ettlingen, Allemagne
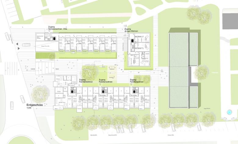
An der Stadtkante Ettlingens gelegen, reagiert der Entwurf auf ein baulich heterogenes Umfeld mit einer klaren, blockrandähnlichen Struktur, die geeignet ist, einen eigenen identitätsstiftenden Mittel- und Bezugspunkt zu bilden. Das Konzept basiert auf einer räumlichen Gestaltung, welche den Blockrand thematisiert, ohne sich klösterlich abzuschotten. Die Ausbildung von zwei hintereinander gestaffelten Kopfbauten an der Dieselstraße lässt Raum für einen angemessenen platzartigen Vorbereich, der die fünfgeschossigen Kopfbauten inszeniert und ein freundliches Signal zum Auftakt des Quartiers und des Ortseingangs setzt.
Gezielte, großzügige Öffnungen sowie bauliche Durchbrüche schaffen eine Komplexität und Transparenz, die eine Vernetzung und Verknüpfung mit ihrer unmittelbaren Nachbarschaft ermöglicht. Zwei barrierefrei verbundene Platzebenen schaffen ein vielseitiges Raumangebot im öffentlichen Raum.
Die großzügige Freitreppe, vielfältige Sitzgelegenheiten und mehreren Neupflanzungen großer Quartiersbäume geben den Flächen ihre Gestalt.
Im Inneren generiert sich die Nutzung als Drittelmix von Senioren- Jungen-
und Familienwohnen und schafft auf diese Weise ein homogenes Abbild unserer urbanen Gesellschaftsstruktur.
- Architectes
- arabzadeh+schneider architekten
- Année
- 2022
- Project Status
- Construit
- Client
- Stadtbau Ettlingen GmbH Ottostr. 9 76275 Ettlingen










