Acht Lofthäuser Walzmühle
Frauenfeld, Suisse
Bis 1995 stellte die Aluminiumwarenfabrik Ferdinand Sigg unter anderem ihre bekannten Trinkflaschen in der Walzmühle in Frauenfeld her. Mit dem Erwerb des idyllischen Areals im Sommer 2013 durch HIAG Immobilien wird den Bauten in den kommenden Jahren weiteres Leben eingehaucht und das Walzmühle-Areal weiterentwickelt.
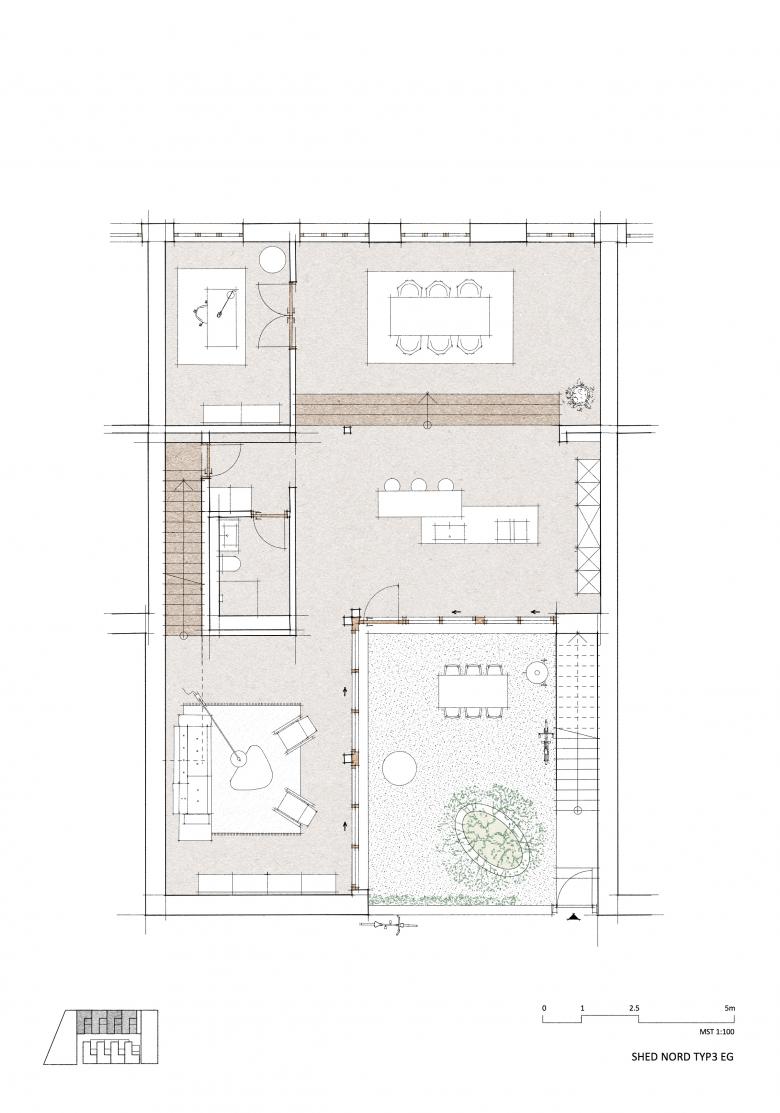
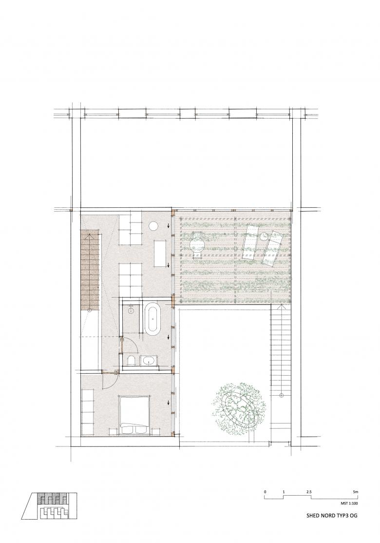
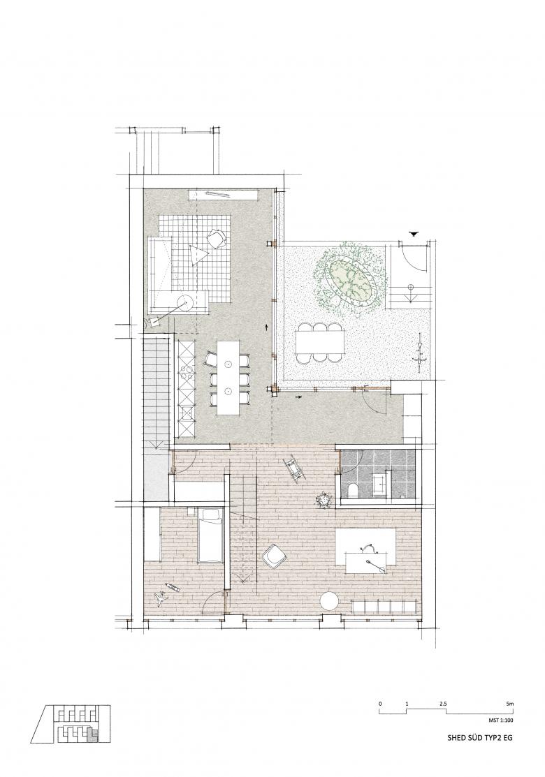
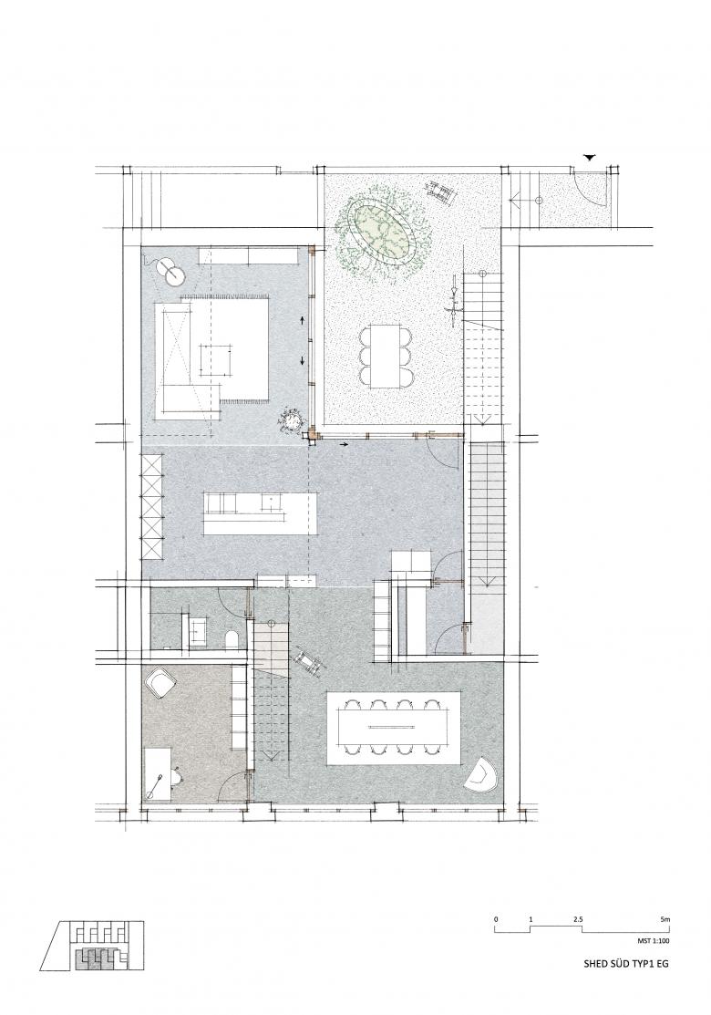
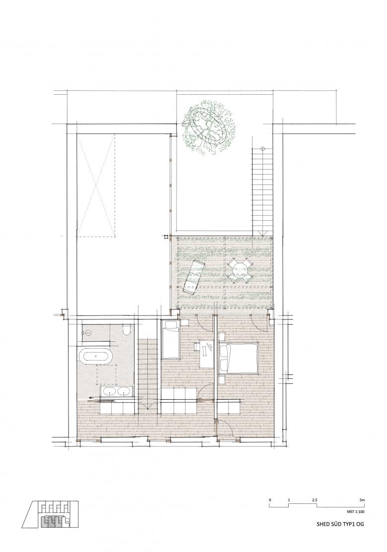
Wir haben die bestehende Shedhalle in acht Lofthäuser umgestaltet. Der gesamte Innenausbau ist die ungewöhnliche Transformation einer Produktionshalle in acht grosszügige Wohnwelten.
Auftragsart: Direktauftrag
Auftraggeber: HIAG Immobilien Schweiz AG























