Ortsmitte Hemmingen
Der Ortskern von Hemmingen ist geprägt von seiner mittelalterlichen Stadtstruktur: Die hohe bauliche Dichte erzeugt durch Aufweitungen und Verengungen interessante Blickbeziehungen und eine hohe Raumqualität. Die einzelnen Gebäude folgen Regeln, die aber immer wieder auch gebrochen werden: Die Geschossigkeit ist ähnlich, die Geschosshöhen variieren dabei stark. Dächer sind immer als steile Satteldächer ausgebildet, die Firstrichtung wechselt aber häufig usw. Konstruktiv dominiert das Fachwerk, die historische Urform des Holz-Hybrid-Baus.
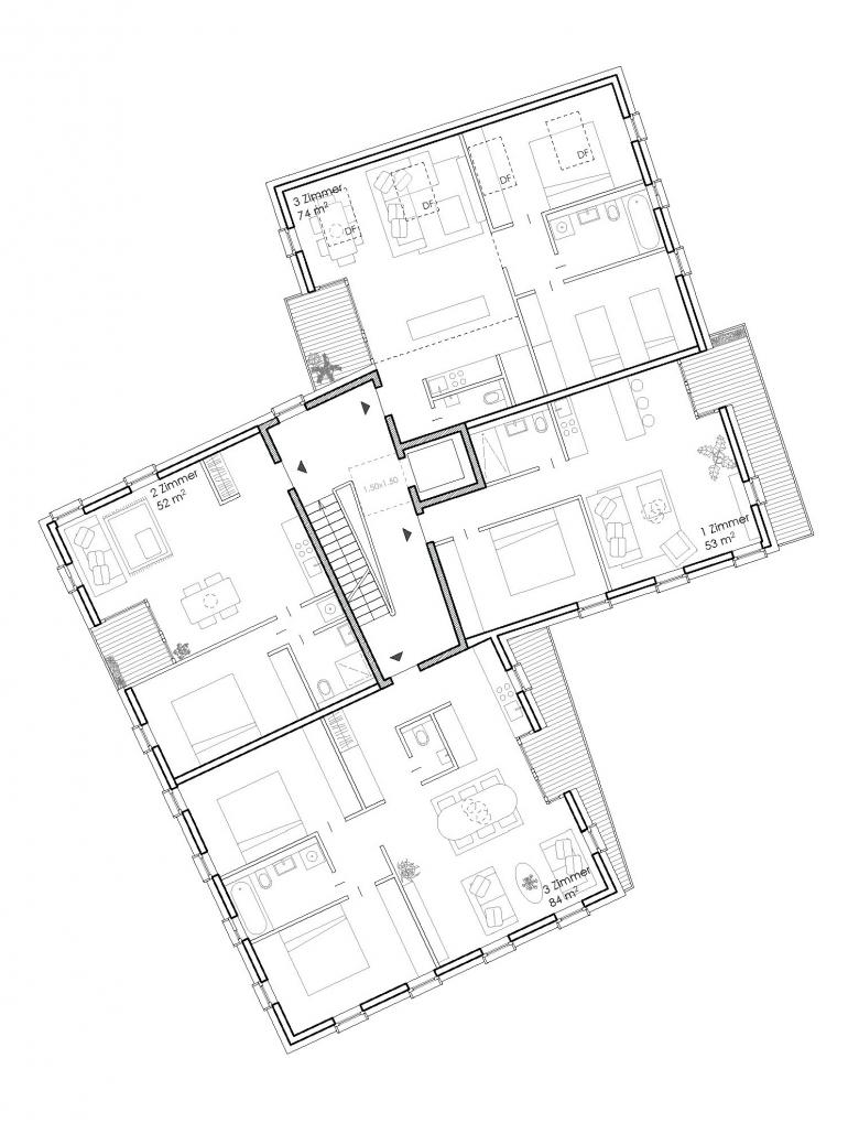
Der vorgeschlagene neue Baukörper fügt sich nahtlos in dieses Stadtgewebe. Er orientiert sich geometrisch an der historischen Substanz, nicht an den Ergänzungen der letzten Jahre. Dachform und Traufhöhen angrenzender Gebäude werden aufgenommen. Die Giebel orientieren sich zum zentralen öffentlichen Raum. Vom Platz aus sind die Gewerbeflächen im EG erschlossen. Der Zugang zum Wohngebäude sowie der separate Zugang zur Garage erfolgen von Westen.
- Équipe
- Eduard Fischer, Jakub Pakula, Beatriz Quintiliano
- Projektentwickler
- Gustav Epple Baukonzept GmbH







