SoN – Center for Soft Nanoscience
Das Umfeld des Forschungsgebäudes ist geprägt durch eine heterogene, bauliche Struktur ohne eindeutige städtebauliche Bezüge. Daher wurde der Leitgedanke des Entwurfs nicht aus dem städtischen Kontext, sondern aus der wissenschaftlichen Nutzung entwickelt. Ziel ist es, den besonderen Anforderungen aus der wissenschaftlichen Nutzung durch eine differenzierte, aber stark funktional ausgerichtete Gebäudestruktur zu entsprechen. Durch geringe baukörperliche Eingriffe entsteht dennoch ein eigenständiger, unverwechselbarer Baustein, der sich in seinem Umfeld zu behaupten weiß.
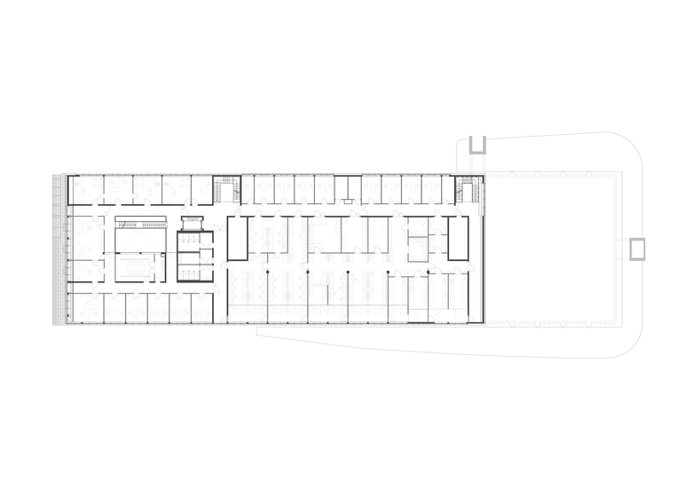
Die Struktur der einzelnen Geschosse des Hauptbaukörpers ist geprägt durch die eindeutige Gliederung zwischen den kompakt sowie streng funktional organisierten Laborlandschaften und den angrenzenden Bürobereichen. Ausgehend von den Seminar- und Besprechungsräumen im Erdgeschoss entwickeln sich die Büroräume im 1. und 2. Obergeschoss um einen offenen Luftraum mit angegliederten Kommunikationszonen sowie entlang der Labore. Die Laborstrukturen sind kompakt und offen gestaltet. Alle Arbeitsbereiche in den Laboren sind auf das Tageslicht ausgerichtet.
- Année
- 2017
- Project Status
- Construit
- Client
- Bau- und Liegenschaftsbetrieb NRW Niederlassung Münster
- Team
- Rainer Maria Kresing (Projektpartner), Thomas Teepe (Projektleitung), Björn Jung, Philipp von Klonczynski, Franz-Josef Pues
- Tragwerksplanung
- gantert + wiemeler ingenieurplanung, Münster
- Projektsteuerung
- SCHÜTT INGENIEURBAU GmbH & Co. KG, Münster











