Erweiterung Schul- und Sportanlage Kollbrunn
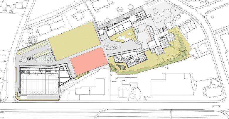
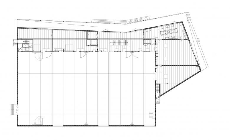
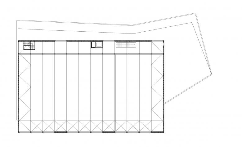
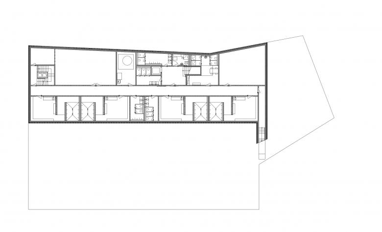
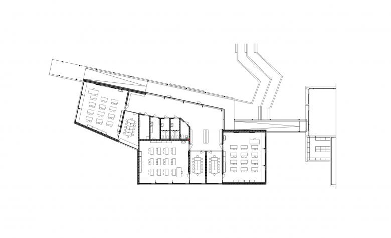
Der Bauplatz liegt im trapezförmigen Geviert, das als Ortsmitte und Schwerpunkt des öffentlichen Dorflebens fungiert. Der Abbruch der alten Schulturnhalle bildet die Voraussetzung für das städtebauliche Konzept des Erweiterungsprojekts: Der Schulhof öffnet sich neu nach Westen zu einem grosszügigen und attraktiven Freiraum, welcher sich bis zur neuen Mehrzweckhalle erstreckt. Der Schulneubau schirmt den Pausenplatz südlich gegen die Immissionen der Tösstalstrasse ab und bildet zusammen mit den Altbauten ein neues Ensemble rund um den zentralen Pausenplatz. Die Mehrzweckhalle fügt sich in die Verlängerung der Eingangs-fassade der Schulerweiterung ein und besetzt als markanter Eckstein die prominente Parzellenecke bei der Einfahrt ins Zentrumsgebiet. Die beiden Neubauten bilden durch ihre räumlichen Bezüge und ihre einladenden Laubengänge eine architektonische Einheit. Die Mehrzweckhalle wird als Holzelementbau mit verputzter Hülle ausgeführt und bezieht sich durch Massstab und Materialisierung auf die regionstypischen Industriebauten, welche die Tösstalstrasse säumen. Die dorfseitigen Laubengänge werden als leichte Holz-strukturen ausgeführt und verleihen dem Vorplatz eine freundliche Atmosphäre.
- Année
- 2016
















