Wohnhaus am Blumenrain
Umbau mittelalterliches Wohnhaus am Blumenrain
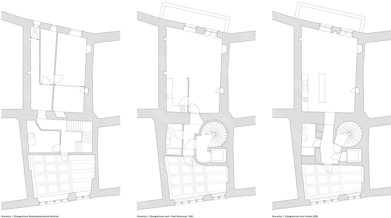
Die Erstnennung des unmittelbar am Rhein gelegenen Wohnhauses „zum roten Zuber“ geht auf das Jahr 1355 zurück; aufgrund der Sondierungen ist anzunehmen, dass für das Gebäude ein Teil der alten Stadtbefestigungsmauer zum Rhein weiterverwendet wurde. Während den folgenden 650 Jahren durchläuft das Gebäude in seiner baulichen und volumetrischen Fassung eine bewegte Zeit. 1983 legen die intensiven denkmalpflegerischen Untersuchungen unzählige Schichten und Fassungen des Gebäudes frei.
Das Gebäude erlebt bis zu diesem Zeitpunkt trotz zum Teil auch substantieller Veränderung eine Kontinuität und einen Respekt vor der vorhergehenden Epoche. Mit dem Totalumbau 1983 wird jedoch ein grosser Teil der von der Denkmalpflege als erhaltenswert bezeichneten oder geschützten Substanz, durch strukturelle Eingriffe, den Einbau einer präfabrizierten Wendeltreppe und einem Lift und unsensibler Erneuerung der Oberflächen, mutwillig zerstört.
Mit dem Besitzerwechsel 2006 wird das Interesse an der „Geschichte“ des Hauses wieder geweckt. In den darauf folgenden Umbauphasen wird die noch erhaltene geschichtliche Substanz in Zusammenarbeit mit der Denkmalpflege und Restauratoren wieder lesbar, wo immer möglich die strukturellen Veränderungen des 83er-Umbaus rückgängig gemacht. Der neue Umbau umfasste die Wohnung im 1. Geschoss. Das neue Rückgrat bildet ein polygonales Raumgefäss als zentrales Entree, welches sich im Grund- und Aufriss zwischen erhaltenswerten Fragmenten (z.B. barocke Kassettendecke) und nicht rückführbaren Eingriffen (Vertikalerschliessung) aufspannt. Der Grundriss ist als Interpretation der historischen Typologie zu lesen, welche von der Mittelwand als eigene, erlebbare Raumschicht zwischen den Hausteilen geprägt wird. Diese Schwelle wird zu einem Entreeraum gedehnt. Dies ermöglicht die Integration der dienenden Räume als Teil einer raumhaltigen Mittelwand. Das ortsspezifische Thema des Übergangs zwischen den unterschiedlichen Gebäudeteilen und derer Orientierung zur Stadt wird räumlich prägend. Die Auswirkungen der fragwürdigen Vertikalerschliessung von 1983 (welche statisch wie oekonomisch nicht rückbaubar ist) auf die Grundrisstypologie werden durch ein polygonales Raumgefäss umgeformt und erzeugen eine neue Mitte der Wohnung.
- Année
- 2009







