Generator House
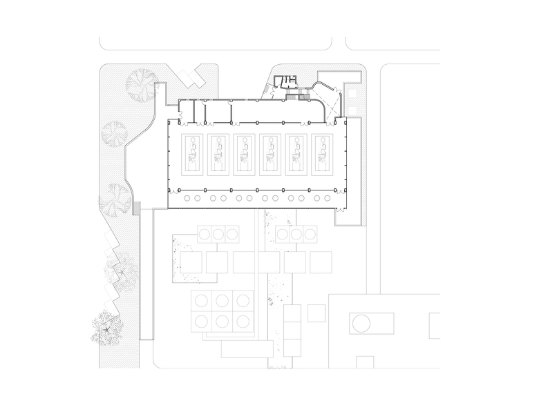
This building, sitting at the entrance of a cement manufacturing plant, has been constructed to house six mammoth diesel generators. The success of this project lies in understanding of the practical & open-ended systems of industrial construction and a creative intervention that makes the building more human – aesthetically and functionally. At the same time the form celebrates the sensorial aspect of the industrial.
The main generator shed is roofed in a curving sweep making its mass look much lighter. The volume of this block is further broken by pulling out the lowest service level to make a podium. The wall along this podium acts as a skin between building and outside and its sensuous movement acts as a welcoming presence to the plant.
- Année
- 2007
- Project Status
- Construit
- Équipe
- Quaid Doongerwala, Shilpa Ranade, Bharti Mohitre








