BSSOG Hartberg.
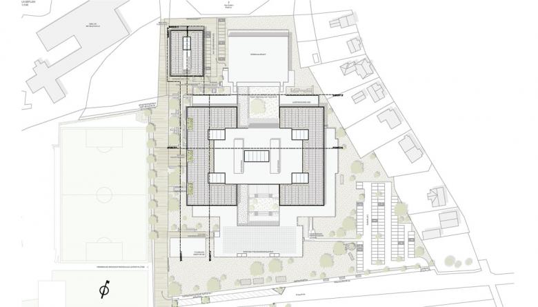
Dieser Wettbewerbsentwurf umfasst eine Aufstockung, einen Neubau und die Sanierung des Bestandsbaukörpers, um Platz für vier unterschiedliche Schultypen an einem gemeinsamen Standort zu bieten. Für die Erweiterung des Gebäudes waren zwei Aspekte auschlaggebend: die bebaubaren Flächen im 1.OG werden für eine Aufstockung genutzt und es entsteht eine offene, vielschichtige Lernlandschaft als Möglichkeitsraum für neue Lerntypologien und zeitgemäße Lehre. Weiters wird der bestehende Parkplatz im nördlichen Bereich des Grundstückes für die Platzierung eines Solitärs genutzt. Somit entlastet der Neubau das Bestandsgebäude und bietet viel Platz für Pädagog:innen und Schüler:innen der HAK/HAS.
Das neue Gebäude dient auch als nachhaltiges Übergangsquartier während der Bauzeit für die verschiedenen Schulformen und es kann somit auf die Errichtung einer Containerschule vollständig verzichtet werden. Die geplante Ausführung von Neubau und Aufstockung in Holzbauweise erlaubt einen hohen Grad an Vorfertigung und gewährleistet damit einen schnellen Bauablauf.
Bis auf einen kleinen Anteil werden die Geschossdecken sowie das vorhandene Stahlbetonbau Stützraster im Sinne einer nachhaltigen Nutzung des Bestandes nicht verändert. Der Innenausbau des Bestandgebäudes wird so weit wie nötig zurückgebaut, punktuell angepasst und neugestaltet, um den passenden Rahmen für zeitgemäße Lernräume bilden zu können.
Die Aufstockung fasst den Bestand mit Spangen im zweiten Obergeschoss und fügt sich formal dem Erscheinungsbild des Bestandgebäudes, wobei durch Differenzierungen in der Fassadengestaltung die Aufstockung einen bewussten Akzent setzt.
Die westliche Fassade des Bestandsgebäudes wird mit einem Pflanzgerüst neugestaltet. Die Begrünung dient zur Beschattung der dahinter liegenden Lernräume und wirkt im Stadtraum identitätsstiftend. Durch ein klar ablesbares Raster in der Holzfassade greift der Neubau die Struktur des Bestandes wieder auf.
Durch Sanierung der Fassaden mit ökologischen Baustoffen, das konsequente Schließen der kleinen Lichthöfe und die Aufstockung werden große Teile der thermischen Hülle des Bestandes verbessert und tragen zu niedrigen Kosten in der Erhaltung und im täglichen Betrieb bei.
Für die Strukturierung und Neuorganisation des Schulzentrums wurde eine Entflechtung der Schultypen vorgenommen. Die Bereiche der HLW sowie Elementarpädagogik verbleiben aufgrund von räumlichen Abhängigkeiten im Erdgeschoss. Die HLW wird in zwei klar zonierten gegenüberliegenden Clustern organisiert.
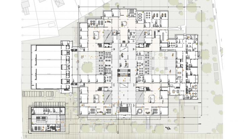
Um die Fläche im Erdgeschoss auch als zeitgemäße, offene Lernlandschaft gestalten zu können, wurde diese im westlichen Bereich der beiden Innenhöfe um jeweils 4 Klassenräume erweitert. Die Dachfläche des Zubaus wird begrünt und im 1.OG als Terrasse und Erweiterung des Innenraums zugänglich gemacht.
Da die AHS den größten Platzbedarf aller vier Schultypen aufweist, finden die Räumlichkeiten der AHS künftig im 1.+2. OG ihren Platz. Die Räumlichkeiten der HAK/HAS werden im neuen Solitärkörper situiert. Innerhalb aller Bereiche jedes Schultyps werden die Klassenzimmer an der Fassade platziert, um optimale Belichtung zu gewährleisten.
Für natürliche Belichtung wurden die vorhandenen Oberlichter erweitert und eine neue großzügige Kaskadentreppe wirkt als zentrales Erschließungselement. Raumhohe Glasflächen zwischen der offenen Lernlandschaft und den Klassenzimmern, sowie der Bezug zu den Atrien erlauben ebenso eine bessere natürliche Belichtung in diesen Zonen.
Die neue Vertikalerschließung verbindet nicht nur die Ebenen miteinander, sondern bietet zusätzlich große Sitzstufen für freies und informelles Lernen. Zusätzlich kann sie für Präsentationen und Vorträge genutzt werden und wirkt so als, für alle Schulformen zugänglicher, Mittelpunkt des Schulzentrums.
Auch im Neubau gibt es als Haupterschließung eine zentrale, offene Treppe mit Aufenthaltsqualität.
Gemeinschaft
Volver a la lista de Proyectos- Ubicación
- Equipo
- Arch. Dipl. Ing. Alexander Topf, Dipl. Ing.In Claudia Schröder BSc





