Sanierung und Erweiterung Rathaus Siegburg
Zentrum der Stadt
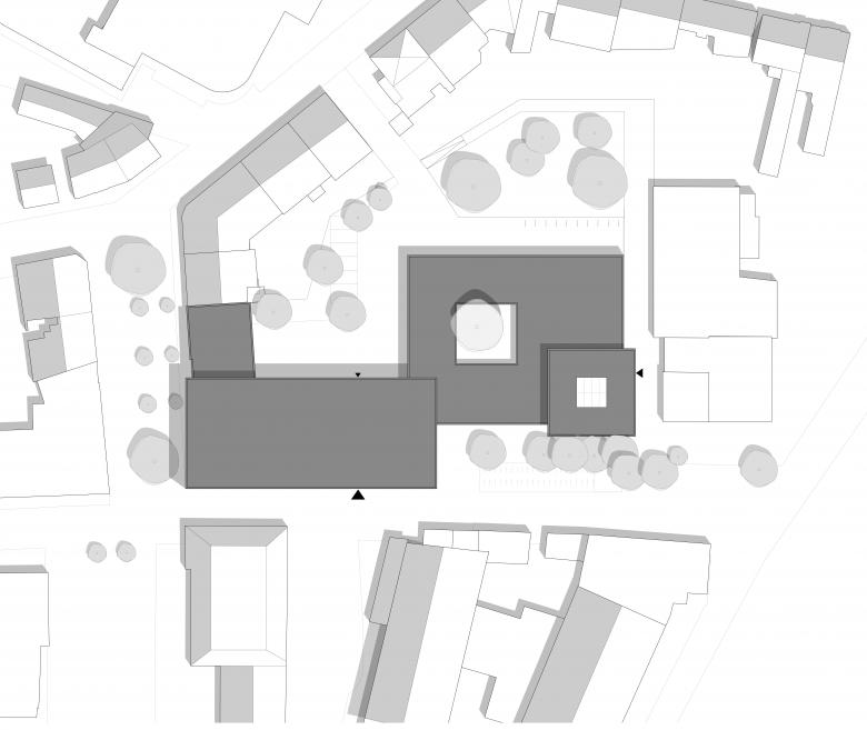
Das 1962 vom Architekten Peter Busmann entworfene Rathaus in Siegburg ist ein herausragendes Beispiel des Rathausbaus der Nachkriegszeit, das durch Reduktion und Transparenz das demokratische Verständnis der Bundesrepublik zum Ausdruck bringt. Nach 50 Jahren war jedoch eine Sanierung und Erweiterung erforderlich. Aufgrund erheblicher Defizite wurde das Rathaus bis auf den Rohbau zurückgebaut und anschließend im Sinne des Ursprungsentwurf, aber als Niedrigenergie-Gebäude KFW 40 (in DGNB-Gold-Standard), wieder hergestellt und um ein Geschoss erweitert.
Das Haus ist kein nach Aufmerksamkeit heischender Solitär, sondern ein Stadtbaustein, der den vorhandenen Block schließt und sich einpasst. Die innere Gliederung in Bürotrakt, öffentliche Nutzungen und Ratssaal ist von außen einseh- und ablesbar. Während das äußere Erscheinungsbild sowie die Erschließungen beinahe unangetastet blieben, wurde der Bürotrakt stark verändert. Die Transparenz zum Außenraum findet sich nun auch innerhalb des Gebäudes wieder: Eine offene Bürolandschaft fördert den Austausch zwischen Verwaltung, Politik und Gästen. Nicht nur das Rathaus – als Zentrum der Stadt – hat Bestand, sondern ebenso das mit ihm verbundene Demokratieverständnis.
- Año
- 2025










