Scuola dell‘infanzia San Giorgio
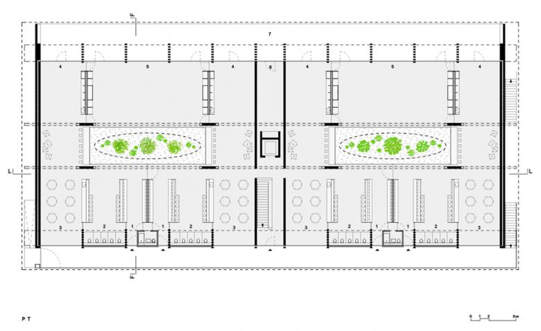
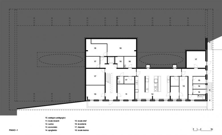
L’edificio definisce con un grande tetto, una lastra orizzontale, il limite sud di un terrapieno rettangolare, posizionandosi tra la scuola elementare, un’area boschiva con biotopo e la scuola media, in modo di mantenere libera la parte nord, quale spazio di riferimento. Le 4 sezioni sono disposte su un piano unico, suddivise in due comparti di due sezioni. Al centro dei comparti si trova un patio vetrato: un’apertura ellittica verso il cielo, un giardino, quale elemento di divisorio e di riferimento, attorno al quale si svolgono le varie attività. Gli spazi di supporto sono collocati al piano inferiore. Il sistema costruttivo è composto da un basamento in cemento armato e da una grande copertura in legno, composta da una serie di travetti, appoggiati sui 4 assi strutturali longitudinali. Essi sono composti da due muri arcati in cemento armato centrali e travi composte in legno laterali che formano delle nicchie verso i ballatoi.
- Año
- 2018

















