Liceo - 2° Premio
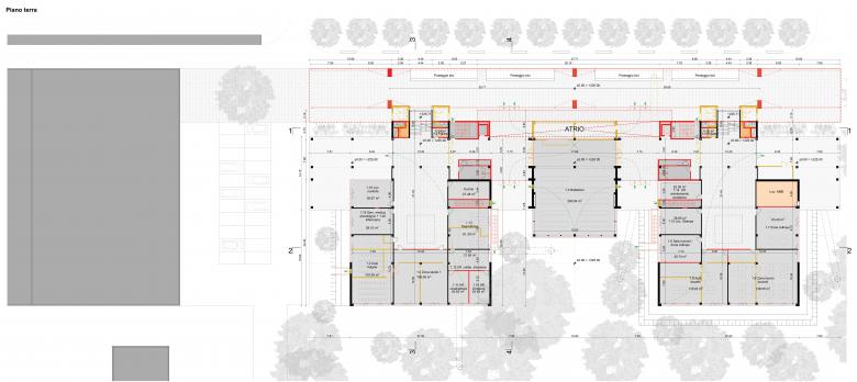
Il Liceo di Bellinzona fa parte del comparto Torretta che si estende dall’archivio di Stato a sud al bagno pubblico a nord; a ridosso della golena del fiume Ticino, definisce il limite di un’ampia area verde. Con l’ampliamento si conferma il principio di limite e di sviluppo lineare, che in futuro potrebbe essere ampliato ulteriormente verso nord. Con un nuovo corpo sospeso, aggiunto a quello esistente, si vuole dare una facciata verso lo spazio fluviale e creare uno spazio pubblico tramite un ampio porticato che diventa la nuova e rappresentativa entrata. L’entrata dal lato dello spazio fluviale coincide inoltre con il concetto della rete di vie ciclabili del bellinzonese.
- Año
- 2018





