Casa Cotschna - Riattazione
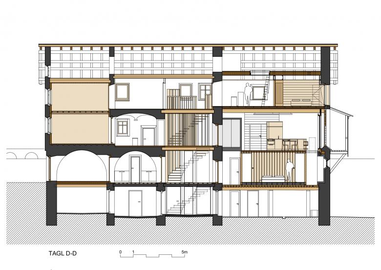
Eine neue, raumbildende Treppe: Renovation eines alten Engadinerhauses
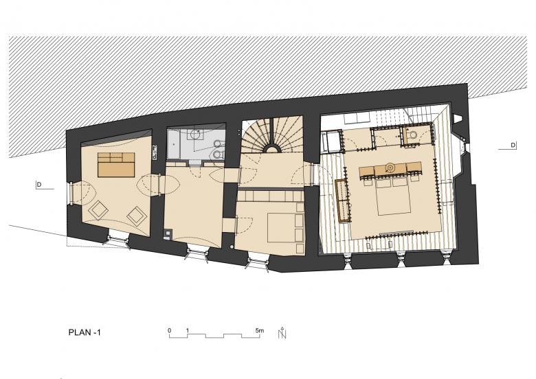
Bei der „Chesa Cotschna“ handelt es sich um ein altes Engadinerhaus, bestehend aus einem bescheidenen Wohnteil mit gestrickter Wohnstube und einem Zimmer, ursprünglich ein mittelaterlicher Wohnturm, einem Mittelbereich, und der Scheune. Im Jahre 1927 wurde das Haus während eines Umbaues „italianisiert“.
Die Renovation fügt eine neue Treppe in den Mittelbereich: die neue vertikale Erschliessung wird zum zentralen Element des Hauses. Die Treppe wird zusammen mit dem Podest als Arbeitstisch als Möbel in einer doppelten Höhe gestaltet. Ein neues Panoramafenster unterstützt diese Idee, als einzige Ausnahme in der einheitlichen Fassade.
- Año
- 2021





