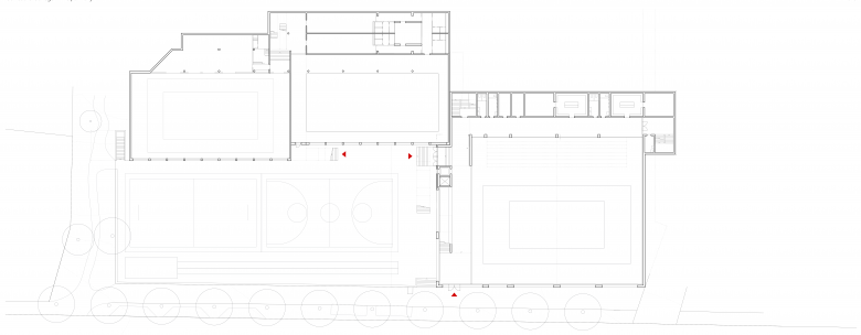
Collège Principal de Pully

© atelier brunecky
© atelier brunecky
© dja
© dja
© dja
© dja
© dja
© dja
© Zaborowsky
© Zaborowsky
© Zaborowsky
Año
2021
Project Status
En construcción
Auftraggeber
Ville de Pully
Bauingenieur
Schnetzer Puskas Ingenieure
Nachhaltigkeit, Gebäudetechnik, Bauphysik, Akustik
Raumanzug
Brandschutz
Balzer Ingenieure
Wettbewerb
2021
Aufgabe
Erweiterungsbau für die Sekundarschule mit 11 Klassenzimmern, Bibliothek / Mediathek, Doppelturnhalle, Schulverwaltung

Otros proyectos de Derendinger Jaillard Architekten 

Gemeindehaus Münsingen
Münsingen, Switzerland
Kantonsschule Ausserschwyz Nuolen
Nuolen, Switzerland
Bahnhof Zürich Altstetten
Zugang Bahnhof Herrliberg / Feldmeilen
Kinderspital Zürich