Einfamilienhaus Kilchberg
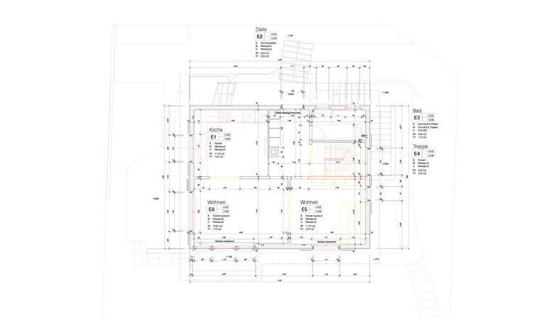
Die zentrale Aufgabe bestand darin, aus den zwei kleinen Geschosswohnungen ein Einfamilienhaus mit einer internen Treppe zu realisieren. Zusätzlich wurden die Räume im Wohngeschoss mittels Durchbrüchen grosszügiger gestaltet und auch die Fenster, neben der internen Treppe, der Küche und allen Nasszellen komplett neu erstellt. Die Materialisierung besteht aus einer Mischung alter Fischgrätparkettböden, Schreinerarbeiten sowie neuen Boden- und Wandbelägen.
- Año
- 2017
- Project Status
- Construido
- Cliente
- Privater Auftraggeber
- Bauingenieur
- Lukas Baumann AG, Bremgarten
- Fotografie
- Andreas Graber, Zürich

