Technisches Betriebszentrum mit Verkehrsleitzentrale

München, Alemania
Foto © Roland Halbe

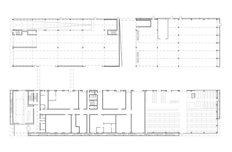
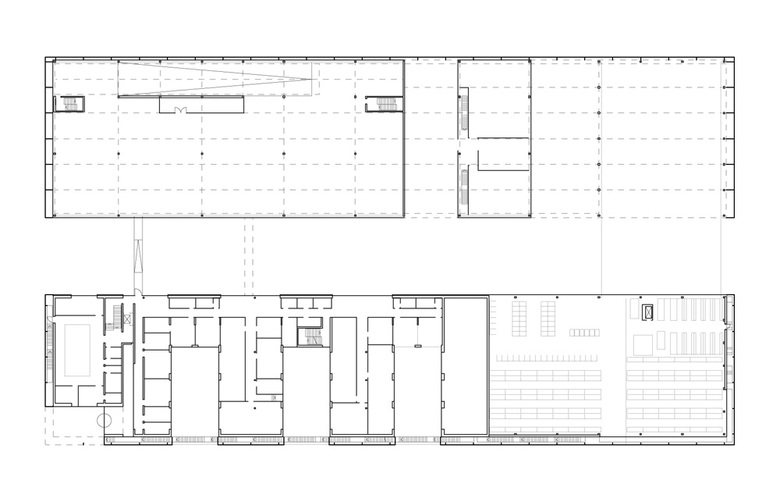
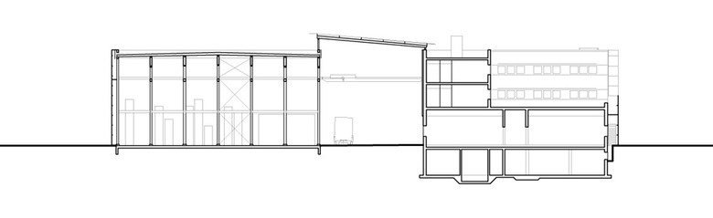
Das neue Betriebszentrum der Landeshauptstadt München soll als technische Infrastruktureinrichtung in seiner funktionalen Gliederung, sowie in seiner Gestaltung beispielgebend für einen Industriebau stehen. Zwei parallele Gebäuderiegel, als kalter und warmer Gebäudeteil ausgeführt, definieren einen durchgehenden glasüberdeckten Hallenraum. Eine Hülle aus perforiertem Leichtmetall fasst die unterschiedlichen Funktionseinheiten zu einem Bauwerk das Offenheit, Dynamik und Wandelbarkeit ausstrahlt. Der Eingang liegt im südöstlichen Riegel und erschließt die Verkehrsleitzentrale, den Verwaltungsbereich mit Besprechungsräumen, die Cafeteria und Werkstätten. Die Parkdecks für Dienst- und Mitarbeiterfahrzeuge sowie die Lagerräume liegen gegenüber im unbeheizten Gebäudeteil. Der glasüberdeckte Hallenraum dazwischen, die sogenannte „Magistrale“ dient dem Be- und Entladen; zwei Stege verbinden die Obergeschosse auf dem kürzesten Weg miteinander. Die Verwendung industriebautypischer, robuster Materialien und Halbzeuge wie Streckmetall, Blech, Glas und Beton werden dem Zweck des Gebäudes als Nutzbau gerecht.

Bauherr
Landeshauptstadt München, Baureferat (Hochbau)


Objektplanung Gebäude
Auer+Weber+Assoziierte
München

Tragwerksplanung
Mayr | Ludescher | Partner
München


Haustechnikplanung
IB Huber
München

Elektroplanung
Rücker+Schindele
München

Bauphysik
Möhler+Partner
München

Freianlagen
Winfrid Jerney Landschaftsarchitekt
München

Bruttogeschossfläche
17.600 qm

Hauptnutzfläche
13.200 qm

Foto © Auer+Weber+Assoziierte
Foto © Roland Halbe
Foto © Roland Halbe
Foto © Roland Halbe
Foto © Roland Halbe
Foto © Roland Halbe
Dibujo © Auer+Weber+Assoziierte
Dibujo © Auer+Weber+Assoziierte
Dibujo © Auer+Weber+Assoziierte
Año
2012

Otros proyectos de Auer Weber 

Sanierung und Erweiterung Inselhalle Lindau
Lindau, Alemania
U-Bahn Verteilerebene Hauptbahnhof München
München, Alemania
Orgelprospekt der Konstantin-Basilika
Trier, Alemania
Sparkasse Allgäu Hauptstelle Kempten
Kempten, Alemania
Amtsgericht Freiburg
Freiburg, Alemania