Erweiterung Hauptverwaltung ESO
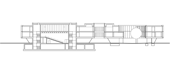
Die Erweiterung der Hauptverwaltung der Europäischen Südsternwarte (ESO) respektiert durch die Architektursprache sowohl den Grüngürtel südlich des Forschungscampus als auch den extrovertierten Charakter des bestehenden Hauptgebäudes. In Anlehnung an dessen Formensprache wurde ein auf Kreissegmenten basierender Neubau mit Büros, Seminarräumen, einem Hörsaal und einem Konferenzraum entwickelt, der stützenfrei über der Landschaft zu schweben scheint. In unmittelbarer Nachbarschaft befindet sich ist das kreisrunde, zweigeschossige Technikgebäude mit der großen Montagehalle.
Bruttogeschossfläche
18.740 m2
Bruttorauminhalt
64.110 m3
Leistungsbild
Lph. 1 – 9 HOAI
Auszeichnung
AIT-Award 2014, Special Mention
Fotografie
Roland Halbe
- Año
- 2013








