Baslerstrasse
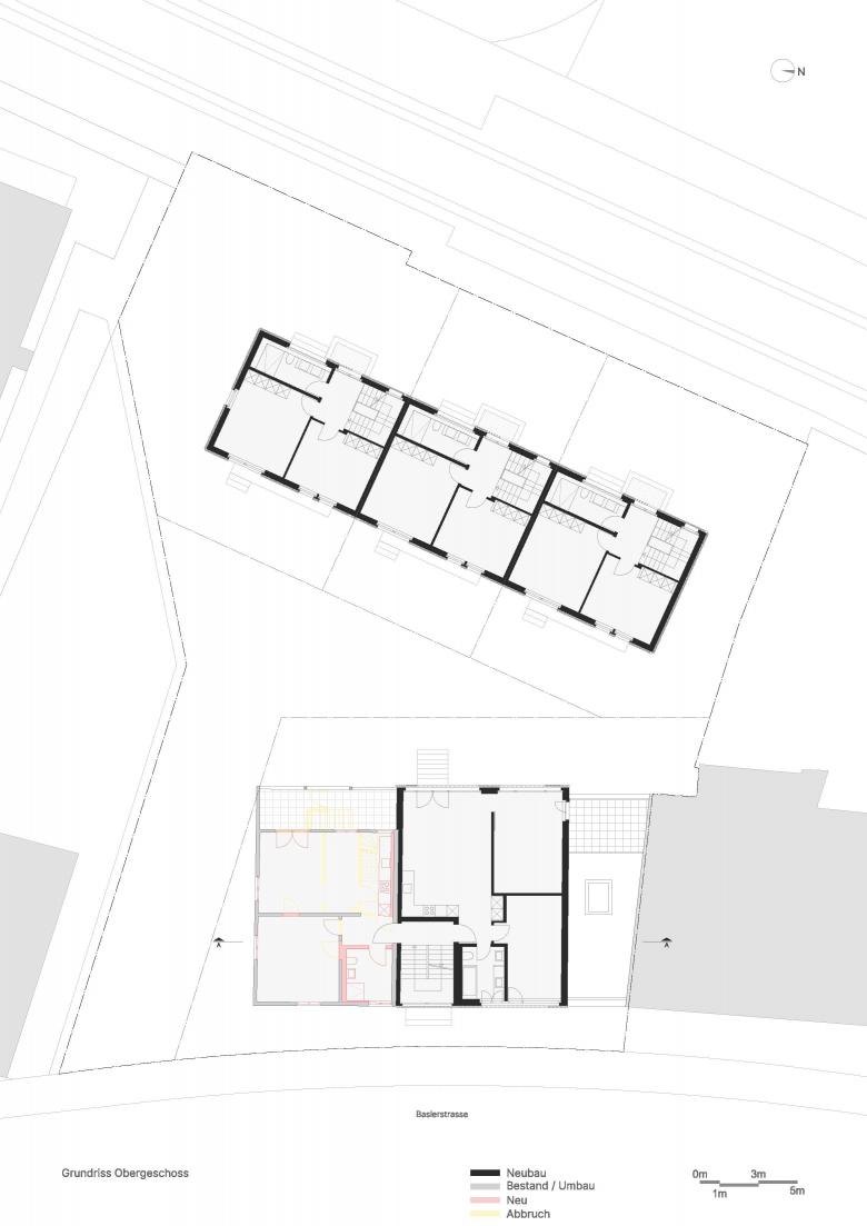
Neubau 3 Einfamilienhäuser (Reihenhaus) aus vorfabrizierten Holzelementen
Umbau + Anbau eines denkmalgeschützten Bauernhauses in 7 Mietwohnungen
An der Baslerstrasse, im historischen Dorfkern von Bottmingen, entsteht ein familienfreundliches Wohnensemble. Zwischen Innenhof und Strasse steht das komplett sanierte und angebaute Bauernhaus mit 7 Mietwohnungen. Im Innenhof befindet sich das frei stehende Hinterhaus, bestehend aus 3 Reiheneinfamilienhäusern.
- Año
- 2022

























