Ersatzneubau Kolonie 3, Sanierung Kolonie 1
Baugenossenschaft Wiedikon, Zürich
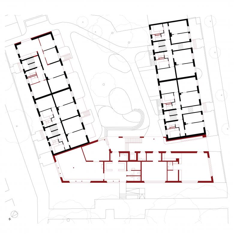
Ersatzneubau mit 16 Wohnungen, Kindergarten und Gemeinschaftsraum
Sanierung und Erweiterung Bestandesbauten mit 35 Wohnungen
Bauvolumen: ca. 15 Mio CHF (BKP 1-5)
Baumanagement: Meier + Steinauer Partner AG, Zürich
Landschaftsarchitektur: Albiez de Tomasi GmbH, Zürich
Farbgestaltung: Atelier für Architektur und Farbe, Katrin Öchslin, Zürich
Die Baugenossenschaft Wiedikon plant, ein Wohnhaus aus den 70er Jahren mit bautechnischen und energetischen Mängeln, sowie einem unzeitgemässen Wohnungsangebot durch einen Neubau zu ersetzen. Zudem müssen im Zuge der Erarbeitung eines Ersatzneubau-Projekts Überlegungen zur Sanierung und möglichen Aufstockungen der Kolonien an der Saum- wie auch an der Goldbrunnenstrasse mit aktuell 31 Wohneinheiten gemacht werden.
Im Gegensatz zum Bestand fügt sich der vorgeschlagene Ersatzneubau passgenau allseitig in den vorgefundenen Blockrand ein. Ein leichter Splitlevelversatz hilft dabei, die unterschiedlichen Höhenlagen an der Saum- respektive der Goldbrunnenstrasse aufzunehmen und derart sehr selbstverständlich an den Bestand anzuschliessen.
Auch die strassenseitige Fassadengestaltung bezieht sich in Rhythmus, Proportionen und baulichen Elementen stark auf den vorgefundenen quartiertypischen Ausdruck. Zum Hof wird eine offene Treppenanlage vorgeschlagen, welche als Ort der Begegnung dienen soll. Ein grosszügiger gedeckter Durchgang zum Innenhof erschliesst einen Gemeinschaftsraum für die ganze Siedlung. Vom Leonhard Ragaz Weg her erschlossen wird ein Kindergarten der Stadt Zürich, auch dieser erhält einen direkten Ausgang auf den Hof.
Jeweils vier Wohnungen sind pro Geschoss vorgesehen. Zwei Familienwohnungen besetzen die Ecken des Blockrands und profitieren somit von einer dreiseitigen Ausrichtung. Dazwischen werden zwei altersgerechte Kleinwohnungen angelegt.
- Year
- 2023
- Project Status
- Built
- Team
- Gisela Radunsky, Toni Götz, Simon Sutter, Andreas Zimmermann, Samuel Währy
- Projektwettbewerb
- 2023, 1. Rang
















