Grundschule Bieber Waldhof

Ottersfuhrstraße 8, 63073 Offenbach, Germany
© Thomas Ott

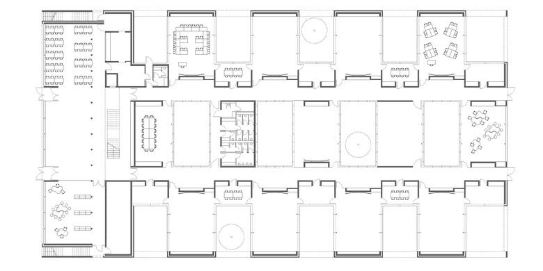
Der Neubau der Außenstelle Waldhof umfasst den Bau einer 2-zügigen Grundschule mit Betreuungsangebot.

Der zweigeschossige Kopfbau im Westen, in welchem die gemeinschaftlichen Nutzungen angeordnet sind, markiert den Haupteingang. Über den erdgeschossigen, teppichartig organisierten Klassenbereich, welcher kindgerecht kleinmaßstäblich an den Kopfbau anschließt, gelangen die Schüler zum geschützten, im rückwärtigen Bereich gelegenen Schulhof. Jedem Klassenraum ist ein Klassengarten zugeordnet, der von der jeweiligen Klasse gepflegt und bepflanzt werden kann.

Zeitraum
2009 - 2014

© Thomas Ott
© Thomas Ott
© Thomas Ott
© Thomas Ott
© Thomas Ott
© Thomas Ott
© Thomas Ott
© Thomas Ott
© Thomas Ott
© Thomas Ott
© Thomas Ott
© Thomas Ott
© Thomas Ott
© Thomas Ott
© Thomas Ott
© Thomas Ott
© Thomas Ott
© Waechter + Waechter Architekten BDA, Darmstadt
Year
2014
Client
Stadt Offenbach
Aufgabe
Grundschule mit Einfeldturnhalle, Offenbach Bieber, Waldhof

Other Projects by Waechter + Waechter Architekten 

Sanierung und Aufstockung Herderschule
Darmstadt, Germany
AFZ Assessment- und Förderzentrum Neuwied
Neuwied-Engers, Germany
AIZ ‐ Akademie der Deutschen Gesellschaft für Internationale Zusammenarbeit (GIZ) am Campus Kottenforst
Bonn, Germany
Internat Berufsbildungswerk Josefsheim
Olsberg, Germany
Haus im Burggarten – Wohnpflegeheim
Breitenbach am Herzberg, Germany