defence colony residence
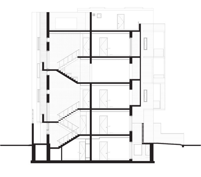
This four-storey townhouse, comprising of two separate units, occupies a constricted urban site in an upscale Delhi neighbourhood. The design of the house was an effort to demonstrate a new typology for the re-development and re-densification of the older neighbourhoods of our cities while at the same time trying to fit in an extensive program requirement. The layout of the residence responds to the need for clearly defined spaces and circulation, as the units are designed to house three generations with different needs.
The load bearing masonry structure, particularly appropriate for earthquake prone location, is exposed on the exterior and select interior walls. Beamless flat slabs help in substantially reducing cost by eliminating extra steel and formwork. Innovatively designed masonry brick screens, outside the deeply recessed balconies of the living spaces filter in light from the strong western sun while large plate glass windows with insulated glazing bring ample amount of light to the bedrooms.
- Year
- 2009
- Project Status
- Under Construction








