Wohnungsbau Ried Baufeld E
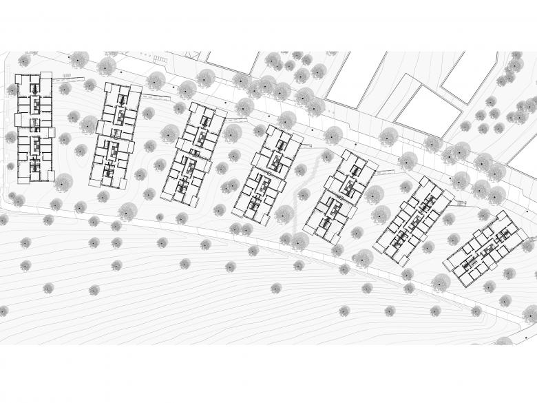
Die Landschaft ist das gestaltbildende Element der Siedlung. Der umfliessenden Grünraum wird durch die aufgefächerte Aufreihung der sieben Gebäude verstärkt. Die leichte Versetzung jedes einzelnen Gebäudes unterstützt die Durchlässigkeit und schafft vielseitige Bezüge in den Grünraum.
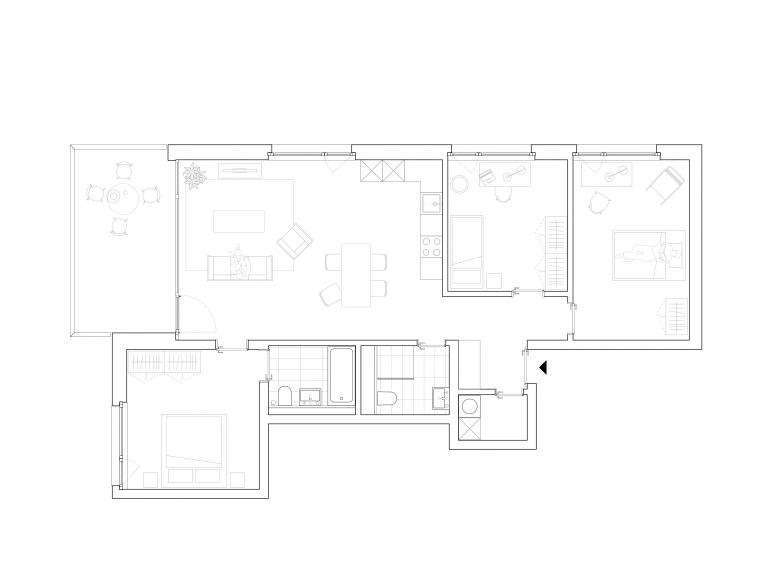
Eine Unterteilung der Baukörper in Vor- und Rückseiten wird bewusst vermieden. Sämtliche Wohnungen sind zweiseitig orientiert und profitieren von unterschiedlichen Ausblicken in die Landschaft. Somit hat jeder Bewohner das Privileg, am Grünen zu wohnen.
Durch die Bildung eines Sockels wird der Gemeinschaftsbereich klar von den Wohngeschossen getrennt. Der Sockel enthält den prägnanten zurückversetzten Hauseingang, sowie sämtliche gemeinschaftlichen Einrichtungen.
- Year
- 2018
- Client
- Buchschacher / BVD Stiftung Marti
- In Zusammenarbeit mit
- Hildebrand Studios AG








